Fejér megye, Óbarok
 

Ingatlan adatai
Irányár: 960 000 000 Ft
Típus: telek
Kategória: eladó
Alapterület: 192 000 m2
Állapota: -
Építés éve: -
Fűtés: -
Felszereltség: -
Szobák száma: -
Szintek száma: -
Telekterület: 192 000 m2
Kert mérete: -
Erkély mérete: -
Parkolás: -
Kilátás: -
Egyéb extrák:  
-
Részletes leírás
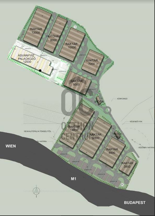
Eladó 19,2 ha beruházási terület az M1 mellett 60 %-os beépíthetőséggelElhelyezkedés: - Központi régióban található- Közvetlen autópálya lehajtó- M0 10-15 percre- Budapest 40 km- Bécs 210 km- Ferihegy 50 km- Győr 80 kmA terület egy része közvetlen az autópálya mellett van, a másik része beljebb, csendesebb részen. A beruházási terület nagyon sok lehetőséget rejt magában, akár ipari hasznosításra, - ásványvíz palackozó üzem, - logisztikai központ, - gyár, stb./ akár egyéb fejlesztésekre, - idősek otthona, - kórház, - wellness központ stb./. Övezeti besorolás: GKSZBeépíthetőség: 60 %Építmény magasság: 12 méterMinimum zöldfelület: 20 %A területre összesen 115200 nm felépítmény építhető. Az alsó terület mellett további 7 ha vásárlására van még lehetőség.
Hirdető adatai
Hirdető neve: Otthon Centrum
Kapcsolattartó: Dr. Kóczy Miklós
Hirdető telefonszáma: +36 70 388 5541
Honlap: -