Pest megye, Törökbálint
 

Ingatlan adatai
Irányár: 130 000 000 Ft
Típus: telek
Kategória: eladó
Alapterület: 2 079 m2
Állapota: -
Építés éve: -
Fűtés: -
Felszereltség: -
Szobák száma: -
Szintek száma: -
Telekterület: 2 079 m2
Kert mérete: -
Erkély mérete: -
Parkolás: -
Kilátás: -
Egyéb extrák:  
-
Részletes leírás
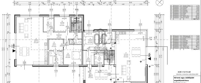
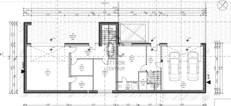
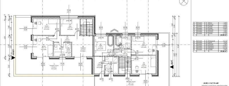
Törökbálinton, 2079 nm nagyságú telek, érvényes tervekkel keresi új tulajdonosát!Néhány fontos paraméter:-utcafronti szélessége ~23,0 m, a telekmélység 92 m-Az utca teljes közművel ellátott.-telek az Üh-2 építési övezetben fekszik-Üh-2 építési övezet előírásai: Beépítésimód: Szabadon álló, Max. terepszint feletti beépítettség: 15 %, de max 300 m2 , Min. zöldfelületi arány: 60% Max. szintterületi mutató: 0,35 Max. épületmagasság: 5,0 + 1,4* = 6,4 m-a tervek két rendeltetési egységet tartalmazó üdülőépületre szólnakKimondottan jó lehetőség, ha igazi panorámás otthont szeretne építeni családja számára, vagy akár eladási szándékkal.Hívjon bizalommal amennyiben felkeltette érdeklődését ez a lehetőség.
Hirdető adatai
Hirdető neve: Otthon Centrum
Kapcsolattartó: Bagó Zsuzsanna
Hirdető telefonszáma: +36 70 469 3896
Honlap: -