Pest megye, Zsámbék
 

Ingatlan adatai
Irányár: 65 000 000 Ft
Típus: telek
Kategória: eladó
Alapterület: 880 m2
Állapota: -
Építés éve: -
Fűtés: -
Felszereltség: -
Szobák száma: -
Szintek száma: -
Telekterület: 880 m2
Kert mérete: -
Erkély mérete: -
Parkolás: -
Kilátás: -
Egyéb extrák:  
-
Részletes leírás
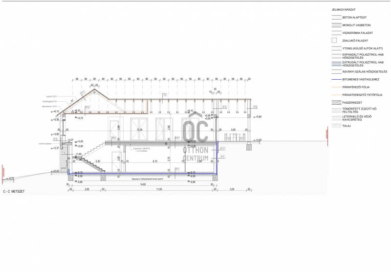
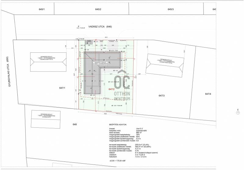
Budapesttől alig fél óra autóútra, Zsámbék csendes utcájában, építési telek, kész tervekkel, eladó.BEÉPÍTÉSI ADATOK:- övezet: Lke-O-3- beépítési mód: szabadon álló- telek területe: 880 m2- megengedett beépítettség: 30%- megengedett zöldfelületi mérték: 60%- megengedett épületmagasság: 5,5 m- megengedett szintterületi mutató: 0,6- tervezett beépítettség: 205,8 m2 (23,4%)- tervezett zöldfelületi mérték: 560,47 m2 (63,69%)- tervezett épületmagasság: 4,21 m- tervezett szintterületi mutató: 0,43- előkert: 6 m (kialakult állapot szerint)- oldalkert: 3 m / 6,26 m- hátsókert: 7,5 m / 21,8 mA telek, cég tulajdonában van, a vételár 27% áfa-t tartalmaz.
Hirdető adatai
Hirdető neve: Otthon Centrum
Kapcsolattartó: Szilágyi Dezső
Hirdető telefonszáma: +36 70 716 8811
Honlap: -