Hajdú-Bihar megye, Hajdúszoboszló
 

Ingatlan adatai
Irányár: 185 000 000 Ft
Típus: ház
Kategória: eladó
Alapterület: 416 m2
Állapota: -
Építés éve: 1995
Fűtés: gáz (cirko)
Felszereltség: -
Szobák száma: 7
Szintek száma: -
Telekterület: 968 m2
Kert mérete: 968 m2
Erkély mérete: 32 m2
Parkolás: -
Kilátás: -
Egyéb extrák:  
-
Részletes leírás
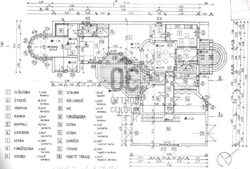
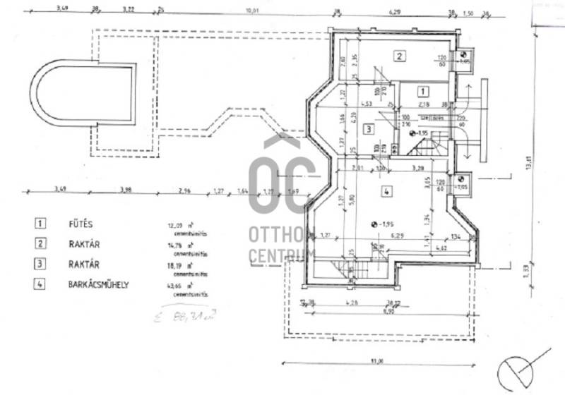
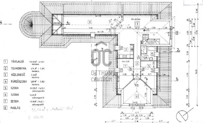
Hajdúszoboszló belvárosában eladó 1995-ben épült 416 m2 nappali+6 hálós önálló családi ház 968 m2 parkosított telken. Magas műszaki tartalommal bíró, jó elosztású, minőségi anyagok felhasználásával kivitelezett kényelmes otthonra talál ebben a házban. Nagycsaládosoknak, illetve több generációnak is kiváló választás lehet.A Porotherm 38 N+F falazat hőszigeteléssel és nemesvakolattal garantálja a minimális rezsi igényt. A gáz cirkó fűtés, 6 db hűtő-fűtő klíma és a nappaliban található Zsolnai cserépkályha biztosítják a meleget. Fa nyílászárói motoros aluredőnnyel felszereltek. A földszinti medencetérben található egy finn szauna is, a pinceszinten pedig borozó és kondiszoba is a kikapcsolódást szolgálja. Folyamatosan karbantartott ingatlan!Gondozott pihenőkertjében filagória és kerti tároló is helyet kapott.További részletekért hívjon bizalommal!
Hirdető adatai
Hirdető neve: Otthon Centrum
Kapcsolattartó: Gratzka Győző
Hirdető telefonszáma: +36 70 388 5461
Honlap: -