Hajdú-Bihar megye, Debrecen
Ingatlan adatai
Irányár:
67 500 000 Ft
Típus:
telek
Kategória:
eladó
Alapterület:
483 m
2
Állapota:
-
Építés éve:
-
Fűtés:
-
Felszereltség:
-
Szobák száma:
-
Szintek száma:
-
Telekterület:
483 m
2
Kert mérete:
-
Erkély mérete:
-
Parkolás:
-
Kilátás:
-
Egyéb extrák:
-
Részletes leírás
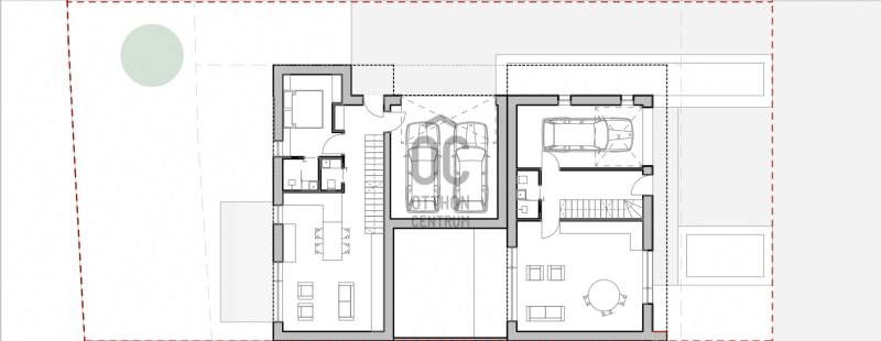
Debrecen, Postakertben 483 nm-es családi ház vagy ikerház építésére alkalmas telek tervekkel együtt eladó. A feltüntetett ár nettó +27% ÁFA terheli.
Hirdető adatai
Ingatlan hirdetés
ajánlása
Hirdetésfigyelő
Hirdető neve:
Otthon Centrum
Kapcsolattartó:
Rácz Zsolt
Hirdető telefonszáma:
+36 70 469 3726
Honlap:
-