Hajdú-Bihar megye, Hajdúszoboszló
 

Ingatlan adatai
Irányár: 550 000 000 Ft
Típus: lakás (újépítésű)
Kategória: eladó
Alapterület: 1 260 m2
Állapota: új
Építés éve: 2018
Fűtés: -
Felszereltség: -
Szobák száma: 30
Szintek száma: -
Telekterület: -
Kert mérete: -
Erkély mérete: -
Parkolás: -
Kilátás: utcai
Egyéb extrák:  
-
Részletes leírás
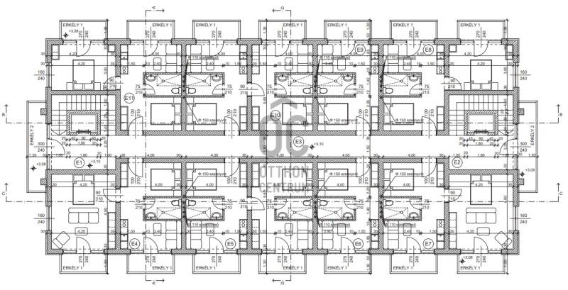
Hajdúszoboszlón a fürdő közvetlen közelében eladó egy három szintes , szintenként 420 m2 es új épitésü panzió/ apartmanház, mely egy 1467 m2 es telken helyezkedik el.Az ingatlan elhelyezkedésének köszönhetően egy igazán remek befektetést rejt magában.Az apartman házban 36 darab különálló lakrész került kialakításra melynek méretei 25 m2 és 50 m2 közöttiek. A szobák elosztása: hálószoba , konyha és ebédlő, fürdőszoba és WC található. Jelenleg a földszint teljes készültségben, a második emelet és a tetőtér folyamatos építésben van. A földszint jelenleg teljes új bútorzattal kerül átadásra új tulajdonosa számára. Ipari klíma teszi kellemesebbé a nyári napokat. A magas műszaki tartalommal rendelkező apartmanház udvarán 24 darab parkolóhely került kialakításra.Az ingatlan ára a jelenlegi készültségi állapotra vonatkozik , ezért kérem minden esetben érdeklődjenek a jelenlegi állapotának megfelelő ár tekintetében.Amennyiben vásárláshoz hitelre is szüksége van független hitel tanácsadónk ingyenesen tud Önnek segítséget nyújtani a legjobb konstrukciók kiválasztásában és a folyamat lebonyolításában.Irodánk kereső ügyfeleinknek teljes körű szolgáltatást nyújt, szakszerű tanácsadással, energetikai tanúsítvány elkészítésével, hitelügyintézéssel és profi ügyvédi segítséggel.Abban az esetben ha az ingatlan felkeltette érdeklődését keressen bizalommal!Hajdúszoboszló# kiváló befektetés# fürdő mellett# apartmanok# vendéglátás#
Hirdető adatai
Hirdető neve: Otthon Centrum
Kapcsolattartó: Busné Vajner Edit
Hirdető telefonszáma: +36 70 388 5821
Honlap: -