Pest megye, Budakeszi
 

Ingatlan adatai
Irányár: 91 900 000 Ft
Típus: lakás (tégla)
Kategória: eladó
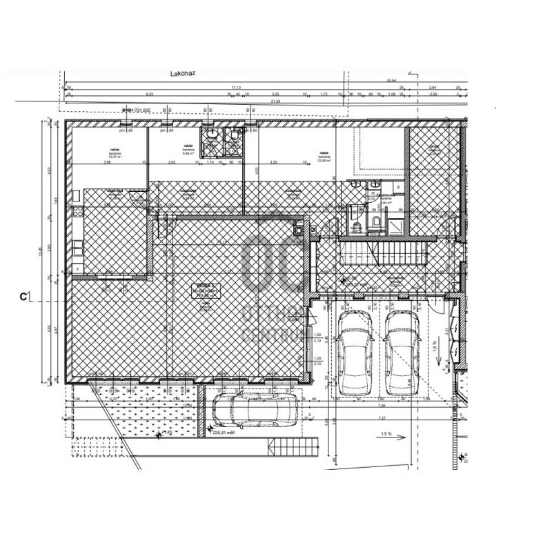
Alapterület: 174 m2
Állapota: -
Építés éve: 2013
Fűtés: gáz (cirko)
Felszereltség: -
Szobák száma: 4
Szintek száma: -
Telekterület: -
Kert mérete: -
Erkély mérete: -
Parkolás: -
Kilátás: udvari
Egyéb extrák:  
-
Részletes leírás
Budakeszi központban csak egy lépésre a kék busztól és boltoktól, eladó egy biztonságos zárt belső udvarból megközelíthető nettó 174 nm nagyságú lakás befejezés előtti állapotban. A lakás jelenleg egy nagyobb és egy kisebb lakóegységként üzeme, szerkezete megengedi, hogy a falakat is igény szerint helyezzük el saját igény szerint. A közművek duplán állnak rendelkezésre, mindenből kettő van. Az ingatlanhoz tartozik egy saját kert valamint három felszíni gépkocsi beálló.Tulajdoni lap szerint tároló külön helyrajzi számon nyilvántartva.További információért várom szíves hívását !
Hirdető adatai
Hirdető neve: Otthon Centrum
Kapcsolattartó: Bóka Balázs
Hirdető telefonszáma: +36 70 461 9816
Honlap: -