Vas megye, Szombathely
 

Ingatlan adatai
Irányár: 22 850 000 Ft
Típus: ház
Kategória: eladó
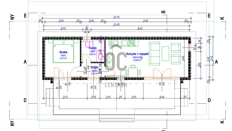
Alapterület: 39 m2
Állapota: új
Építés éve: 2025
Fűtés: elektromos
Felszereltség: -
Szobák száma: 2
Szintek száma: -
Telekterület: 750 m2
Kert mérete: 750 m2
Erkély mérete: -
Parkolás: -
Kilátás: -
Egyéb extrák:  
-
Részletes leírás
A XXI. század megérkezett, álmodjon egy házat magának!Az energiatakarékos házak iránti növekvő kereslet miatt komoly fejlődésen ment keresztül ez a modern technológia, ezáltal az egyik leginkább környezetkímélő és energia-hatékony építőipari megoldássá vált. Az acélszerkezetből készült épületek gyártásához, felépítéséhez és működtetéséhez sokkal kevesebb nyersanyagra és energiára van szükség, mint egy hagyományos épületnél. Az acélszerkezetben nincs semmilyen egészségkárosító, allergén anyag. A gipsz, melyet falburkolásra használnak, természetes anyag. A falakban lévő modern kőzetgyapot-réteg pedig sokkal tartósabb ma már, mint a régen használt üveggyapot, és nem juthat be a lakótérbe. A horganyzott acélváz nem igényel felületkezelést, anélkül is ellenálló a rovarokkal, rágcsálókkal, penészesedéssel és gombásodással szemben. Az építés során a házban és környékén nem keletkezik por, veszélyes hulladék vagy talajszennyeződés. A száraz építési technológiának köszönhetően nem kell várni a falak száradására, így ebből eredő penészedés sem történik.​ Az épület ezért a kivitelezés után azonnal beköltözhető. A modulszakaszok felépítése 1-3 nap alatt megtörténik, kulcsrakészen megépítjük álmai otthonát, válasszon több mint 100 kész-ház tervünk közül!Minden beépített anyagra a Ptk. által meghatározott általános garancia érvényes, minden családtámogatási lehetőség igénybe vehető.Hideg-, meleg-burkolatok, szaniterek, belső ajtók saját ízlés szerint választhatók, a fűtést elektromos padlófűtés biztosítja.Egyedi igények szerinti további választható tételek: napelemrendszer, hőszivattyús fűtésrendszer, klíma.Kötbérrel garantált 6 hónapon belüli kulcsrakész átadás a szerződéstől számítva.Jelen hirdetés tárgya: 39 nm, 2 szoba: 22,85 MFt.Az ajánlat a telek árát nem tartalmazza!Hitelre van szüksége? Az Otthon Centrum az ország egyik legnagyobb és legmegbízhatóbb hitelközvetítőjeként, teljes körű és díjmentes hitelügyintézéssel, biztosításkötéssel áll rendelkezésére! Kérje személyre szabott ajánlatunkat Kollégáinktól!
Hirdető adatai
Hirdető neve: Otthon Centrum
Kapcsolattartó: Derecskei Csaba
Hirdető telefonszáma: +36 70 716 9391
Honlap: -