Pest megye, Szigetszentmiklós
 

Ingatlan adatai
Irányár: 69 900 000 Ft
Típus: telek
Kategória: eladó
Alapterület: 703 m2
Állapota: -
Építés éve: -
Fűtés: -
Felszereltség: -
Szobák száma: -
Szintek száma: -
Telekterület: 703 m2
Kert mérete: -
Erkély mérete: -
Parkolás: -
Kilátás: -
Egyéb extrák:  
-
Részletes leírás
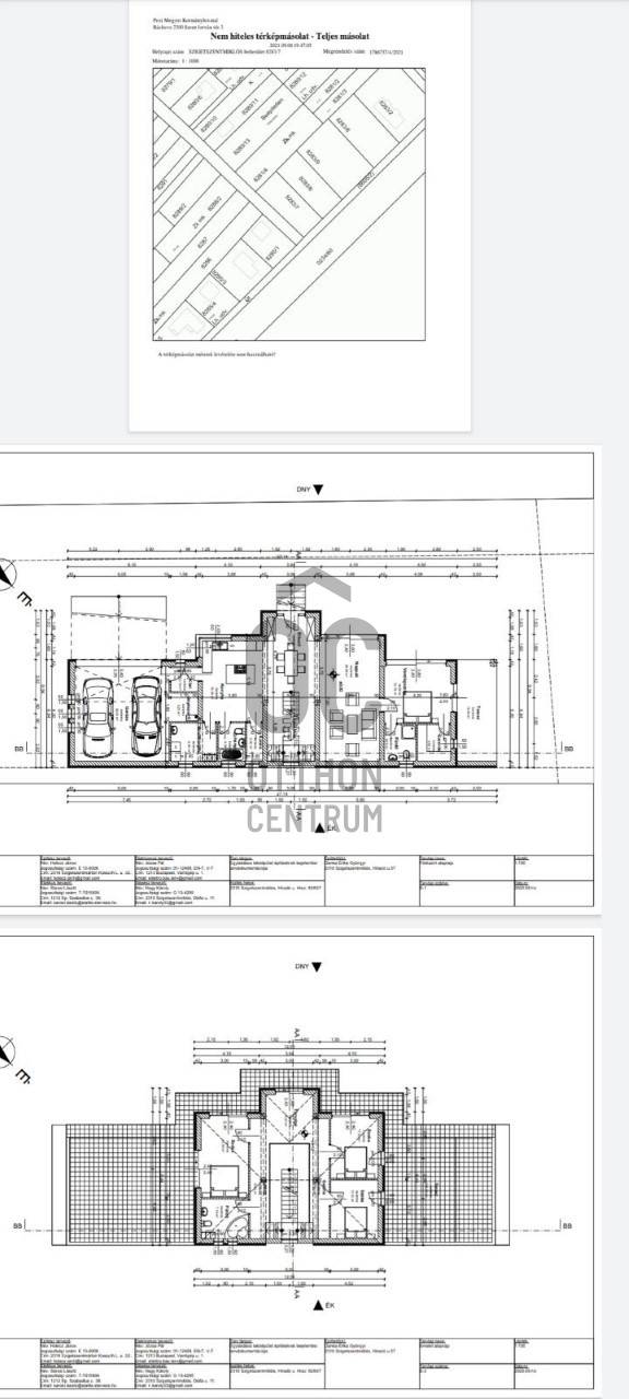
SZIGETSZENTMIKLÓS , LAKIHEGYEN ÉRVÉNYES ÉPÍTÉSI ENGEDÉLLYEL TELEK ELADÓEladásra kínálunk egy 703 nm-es telket . A család saját magának tervezte , építette , ami családi ok miatt meghiúsult .Az eladó építési vállalkozóval meg lehet egyezni ( ha tetszenek a tervek ) a befejezésről
Hirdető adatai
Hirdető neve: Otthon Centrum
Kapcsolattartó: Hideg Róbert
Hirdető telefonszáma: +36 70 469 3736
Honlap: -