Pest megye, Érd
 

Ingatlan adatai
Irányár: 114 000 000 Ft
Típus: ház
Kategória: eladó
Alapterület: 177 m2
Állapota: -
Építés éve: 2000
Fűtés: gáz (cirko)
Felszereltség: -
Szobák száma: 6
Szintek száma: -
Telekterület: 557 m2
Kert mérete: 557 m2
Erkély mérete: -
Parkolás: -
Kilátás: -
Egyéb extrák:  
-
Részletes leírás
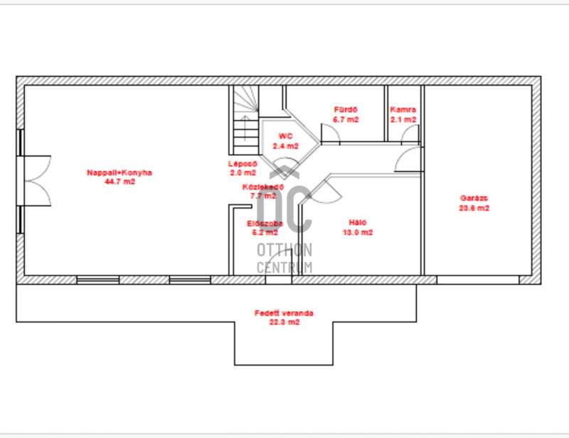
Eladó Családi Ház Érden, Érdliget Csendes Övezetében!Eladásra kínálunk egy remek állapotban lévő, 2000-ben épült, önálló családi házat Érd Érdliget részén, csendes, családi házas környezetben. Az ingatlan 557 m²-es telken helyezkedik el, és nettó 177 m² hasznos alapterülettel rendelkezik.A ház földszintjén található egy tágas és hangulatos átriumos nappali konyhával, valamint egy előszoba, egy hálószoba, egy wc és egy fürdőszoba. A nappali nagy teraszajtaja elektromos redőnnyel van felszerelve. A garázs egy autó beállására alkalmas, és szintén elektromos ajtóval rendelkezik.Az emeleti szintre felérve a galériáról lenézhetünk a nappalira, itt kb. 6 méteres a belmagasság. Ezen a szinten található még egy nagy nappali konyhával, három hálószoba és egy fürdőszoba is. A fenti szint melegvíz ellátását egy villanybojler biztosítja, amely éjszakai áramról üzemeltethető, míg a földszinten a kombi gázkazán látja el a melegvíz szolgáltatást.Az ingatlan Porotherm 30-as téglából épült, hőszigetelő nemesvakolattal, a tetőtéri rész 15 cm Isolith hőszigetelést kapott, így télen is kiváló hőmegtartó képességgel rendelkezik. A fűtést gázkazán biztosítja radiátoros hőleadással.A ház elhelyezkedése kitűnő: a közelben található a Napsugár óvoda, Spar áruház, valamint buszmegálló, amelyek mindössze pár perces sétára elérhetők. Érd városközpontja és a vasúti megálló is könnyen megközelíthető, mindössze 10 perc alatt.Az ingatlan per, teher és igénymentes, hitelezhető!Hívjon bizalommal a megtekintésért!
Hirdető adatai
Hirdető neve: Otthon Centrum
Kapcsolattartó: Antal Mónika
Hirdető telefonszáma: +36 70 461 9181
Honlap: -