Hajdú-Bihar megye, Álmosd
 

Ingatlan adatai
Irányár: 13 900 000 Ft
Típus: telek
Kategória: eladó
Alapterület: 4 187 m2
Állapota: -
Építés éve: -
Fűtés: -
Felszereltség: -
Szobák száma: -
Szintek száma: -
Telekterület: 4 187 m2
Kert mérete: -
Erkély mérete: -
Parkolás: -
Kilátás: -
Egyéb extrák:  
-
Részletes leírás
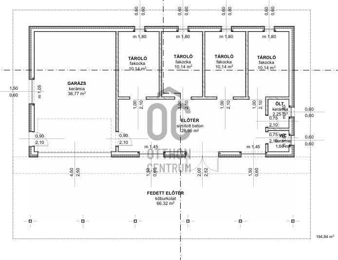
Debrecentől 35 km, Vámospércstől 15 km távolságra, Álmosd központjábanösszközműves, 4187 nm-es telek, érvényes építési engedéllyel eladó.A telek az építéshez elő van készítve: a telek jobb oldalán 4 m szélességben80 cm mély zúzott kő alap biztosítja, hogy tehergépjárművek be tudjanak állni.A tervek szerint lakóház, garázs, és több állásos istálló építésére van érvényesépítési engedély.Ipari áram, vezetékes víz, csatorna a telken belül rendelkezésre áll.Két fúrt kút is található, a hozzá tartozó rendszerrel, és egy 12 m3-es emésztő a gazdasági épület mellett.A telek végén gyönyörű, fás környezetben patak folyik, így a telek végérehalastó van tervezve.Mivel a közelben található a Kölcsey Emlékház és a Posta Múzeum, így akármás jellegű szabadidős tevékenység kialakítása is lehetséges.
Hirdető adatai
Hirdető neve: Otthon Centrum
Kapcsolattartó: Koroknainé Erzsébet
Hirdető telefonszáma: +36 70 461 9356
Honlap: -