Pest megye, Mogyoród
 

Ingatlan adatai
Irányár: 189 000 000 Ft
Típus: telek
Kategória: eladó
Alapterület: 3 000 m2
Állapota: -
Építés éve: -
Fűtés: -
Felszereltség: -
Szobák száma: -
Szintek száma: -
Telekterület: 3 000 m2
Kert mérete: -
Erkély mérete: -
Parkolás: -
Kilátás: -
Egyéb extrák:  
-
Részletes leírás
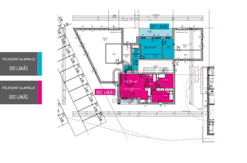
Eladó Fejlesztési Telek építési engedéllyel!3. ütem építési engedéllyel, tervekkel együtt a Sissy lakóparkban Mogyoródon!építhető 6 db eco lakás és 2 iroda, és kereskedelmi egységek- üzlethelységekAz apartmanok a portaszoltálattal működő zárt Sissy Park területén találhatóak, saját tóval, futó utakkal. A harmadik ütemben felépülő H-Ház épület alsó szintjén kereskedelmi egységek találhatóak, emellett 2 db kompletten, fürdővel és konyhával felszerelt iroda, 6 db lakás, 50-80 négyzetméter közötti alapterülettel. A modern és innovatív tervezésnek köszönhetően minden lakáshoz tartozik változó méretű erkély vagy terasz, mellyel az ingatlan használati értékét és használhatóságát növeli. Az év nagy részében ezáltal szabadlevegős étkezéseket beszélgetéseket is kínál Önnek.A H- Ház üzletközpont Budapesttől 10-km – re található fejlődő településen Mogyoródon találhatóak, a festői zárt Sissy Villapark területén. Az M3 autópálya felhajtója a parkból autóval 2 percnyire található. Budapest 10 , míg Gödöllő 5 perc autózással elérhető.
Hirdető adatai
Hirdető neve: Otthon Centrum
Kapcsolattartó: Fricz Patrik
Hirdető telefonszáma: +36 70 716 8711
Honlap: -