Budapest, XXII.kerület
 

Ingatlan adatai
Irányár: 481 769 Ft/hó
Típus: kereskedelmi/ipari ingatlan
Kategória: kiadó
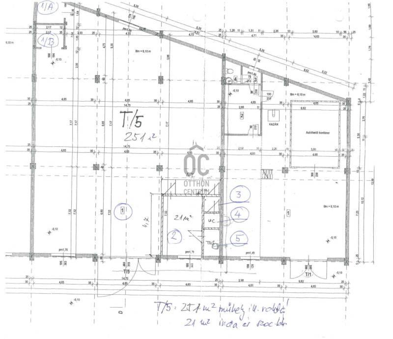
Alapterület: 272 m2
Állapota: -
Építés éve: -
Fűtés: -
Felszereltség: -
Szobák száma: -
Szintek száma: -
Telekterület: -
Kert mérete: -
Erkély mérete: -
Parkolás: -
Kilátás: -
Egyéb extrák:  
-
Részletes leírás
12 tonna feletti kamionnal behajtási engedély nélkül megközelíthető, emellett kiváló lokációval és infrastruktúrával rendelkező telephelyen belül, elhelyezkedő, raktár+iroda, kiadó.251 m2 raktár21 m2 iroda+szociális blokkA telepen nyújtott szolgáltatások:0-24 órás portaszolgálat,folyamatos karbantartási szolgálat,08-15 óráig üzemelő étterem, kávézó,kommunális szemét elszállítás,park, úthálózat rendben tartása.A bérleti díjon felül, 1,5 Euró/m2/hó üzemeltetési díj fizetendő.A kaució mértéke, három havi bérleti díj.A bérleti díjat 27% ÁFA terheli.
Hirdető adatai
Hirdető neve: Otthon Centrum
Kapcsolattartó: Szilágyi Dezső
Hirdető telefonszáma: +36 70 716 8811
Honlap: -