Szabolcs-Szatmár-Bereg megye, Kemecse
 

Ingatlan adatai
Irányár: 13 000 000 Ft
Típus: telek
Kategória: eladó
Alapterület: 5 434 m2
Állapota: -
Építés éve: -
Fűtés: -
Felszereltség: -
Szobák száma: -
Szintek száma: -
Telekterület: 5 434 m2
Kert mérete: -
Erkély mérete: -
Parkolás: -
Kilátás: -
Egyéb extrák:  
-
Részletes leírás
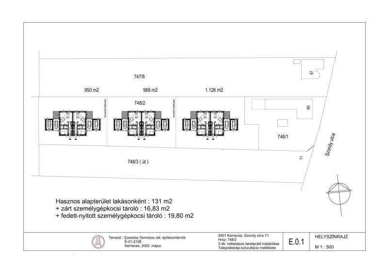
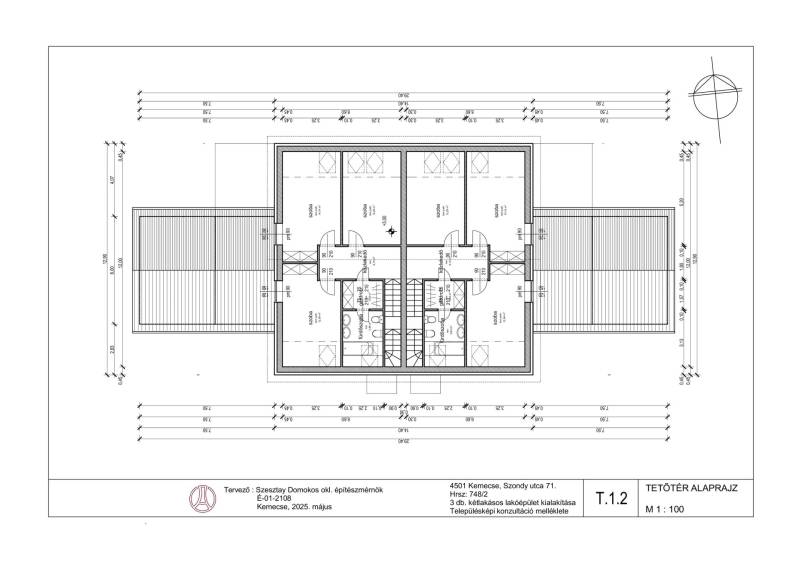
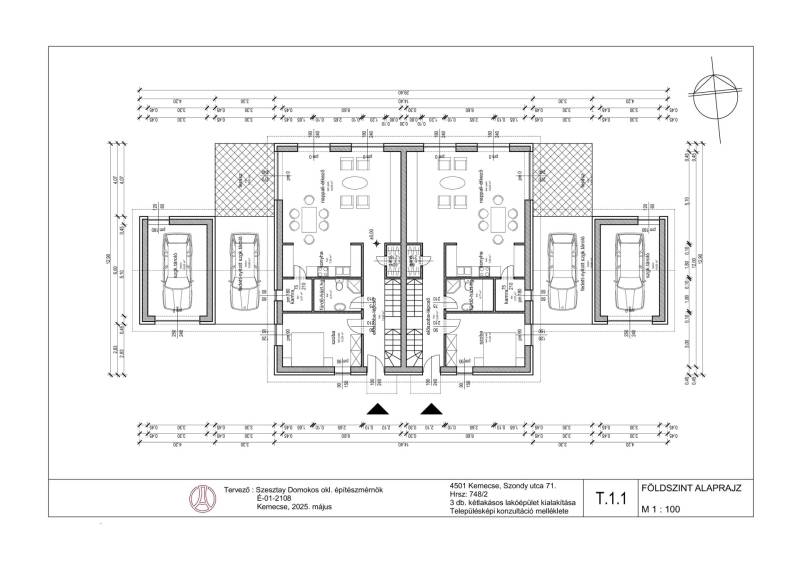
Kemecsén 2 db egymás mellet elhelyezkedő telek eladó!Legfontosabb tudnivalók:-A telkek méretei: 3013 és 2421 m2-A telkek beépíthetősége: 30% (4,5 m építménymagassággal)-A telkek magánúttal rendelkeznek-A telkek a magánutat leszámítva három részre oszthatók-Projektként is megvásárolható ikerház tervekkel (a feltűntetett rajzok alapján, ikerház jelleggel, összesen 6 ház)-Igény szerint kerítésanyagokkal-Összközmű az utcában-Ipari jellegű hasznosításra is alkalmas-A telkekre a kamionok részére az akadálymentes ráfordulás zökkenőmentesen lehetségesA hirdetésben szereplő információk a megbízótól kapott adatok alapján készültek, pontosságukért felelősséget nem vállalunk! Amennyiben vásárláshoz hitelre is szüksége van, független hitel tanácsadónk ingyenesen tud Önnek segítséget nyújtani a legjobb konstrukciók kiválasztásában és a folyamat lebonyolításában. Irodánk kereső ügyfeleinknek teljes körű szolgáltatást nyújt, szakszerű tanácsadással, energetikai tanúsítvány elkészítésével, hitelügyintézéssel és profi ügyvédi segítséggel. Abban az esetben ha az ingatlan felkeltette érdeklődését keressen bizalommal!
Hirdető adatai
Hirdető neve: Otthon Centrum
Kapcsolattartó: Simon Norbert
Hirdető telefonszáma: +36 70 469 3951
Honlap: -