Budapest, XV.kerület
Rákospalota 

Ingatlan adatai
Irányár: 139 900 000 Ft
Típus: ház
Kategória: eladó
Alapterület: 185 m2
Állapota: -
Építés éve: 1980
Fűtés: -
Felszereltség: -
Szobák száma: 7
Szintek száma: -
Telekterület: 643 m2
Kert mérete: 643 m2
Erkély mérete: -
Parkolás: -
Kilátás: utcai
Egyéb extrák:  
-
Részletes leírás
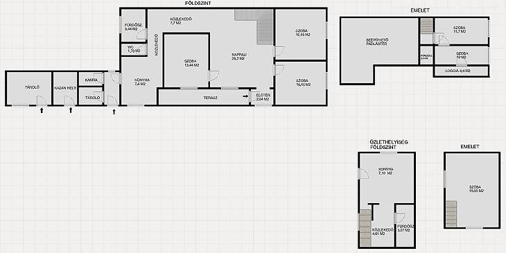
XV. KERÜLETBEN: FREKVENTÁLT RÉSZEN, ELADÓ EGY JÓ ÁLLAPOTÚ, 185 M2 (144 M2 HÁZ+41 M2 ÜZLETHELYISÉG), 7 SZOBÁS, DUPLAKOMFORTOS, TÖBB GENERÁCIÓ SZÁMÁRA IS IDEÁLIS CSALÁDI HÁZ, 643 M2 TELEKKEL, AUTÓBEÁLLÓVAL, GARÁZZSAL.A HÁZ JELLEMZŐI: A ház egy része az 1940-es években épült, de 1989-ben teljesen át lett építve, fel lett újítva esztétikailag és műszakilag is. Az épület betonalappal rendelkezik, a homlokzat 5 cm-es szigeteléssel van ellátva (kivéve az utcafronton), a födém 15 cm-es kőzetgyapottal szigetelt.A földszinti részen, konyha, nappali, 3 szoba, kamra, fürdőszoba, előszoba, mellékhelyiség, közlekedő és terasz található, az emeleten 2 szoba, fürdőszoba és erkély kapott helyet. A tetőtér nincs teljesen beépítve. A fűtést gáz- és vegyes tüzelésű kazán biztosítja, lapradiátorokkal és egy hűtő-fűtő klíma is rendelkezésre áll. A nyílászárók fakeretes hőszigetelt ablakok.Az üzlethelyiség 41 m2, belső 2 szintes, 1 szobás, jelenleg lakásként funkcionál, de szeparálható így akár irodaként, üzletként is működhet.A telek szépen karban tartott, szerelő aknás garázs is kialakításra került, de több autóval is van lehetőség beállni.FINANSZÍROZÁS:Az ingatlan hitelre is megvásárolható. Bankfüggetlen tanácsadóink, az ország összes pénzintézete közül gyorsan és gördülékenyen találja meg az Önnek legmegfelelőbb konstrukciót, egyedi kedvezményekkel. A hitel közvetítés díjmentes.A hirdetésben szereplő adatok tájékoztatót jellegűek.Várjuk hívását munkanapokon 09:00-18:00 óra között.Amennyiben eladná saját ingatlanát, több mint 10 éve működő, kifejezetten a kerületre szakosodott irodánktól, INGYENES ÉRTÉKBECSLÉST kérhet.
Hirdető adatai
Hirdető neve: MPD Hungary Kft.
Kapcsolattartó: Imobiliare Kft.
Hirdető telefonszáma: +3612305153
Honlap: -