Somogy megye, Siófok
 

Ingatlan adatai
Irányár: 689 000 000 Ft
Típus: kereskedelmi/ipari ingatlan
Kategória: eladó
Alapterület: 450 m2
Állapota: -
Építés éve: 2005
Fűtés: -
Felszereltség: -
Szobák száma: -
Szintek száma: -
Telekterület: -
Kert mérete: -
Erkély mérete: -
Parkolás: -
Kilátás: -
Egyéb extrák:  
-
Részletes leírás
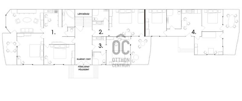
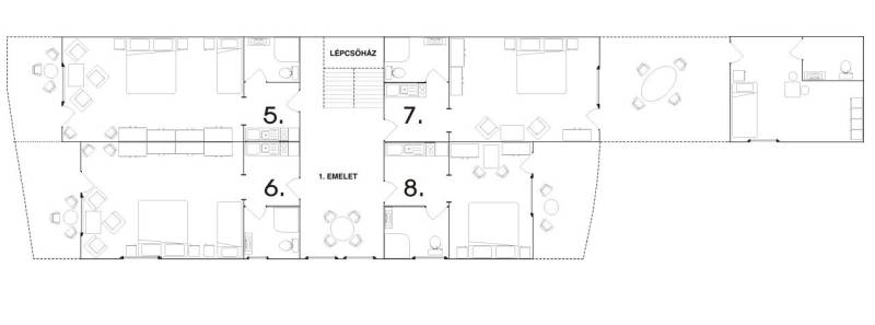
Siófok-Aranyparton, a város turisztikai központjában, impozáns villák szomszédságában eladásra kínálunk egy jól működő, kifogástalan állapotú apartmanszállodát, amely jelenleg is sikeresen üzemel és kiváló lehetőséget biztosít mind a vendéglátás, mind a hosszú távú befektetés iránt érdeklődők számára.*12 felszerelt, légkondicionált apartman*Kamerával megfigyelt zárt udvari parkoló *Reggeliztető helyiség, bárpult, előkészítő helyiségek*Recepció külön szobával és fürdővel*Gázcirkó fűtés – alacsony üzemeltetési költség*Ingyenes Wi-Fi, TV, telefon, mozicsatornák*Ősfás, csendes környezet, klasszikus villaövezetLokáció:Az ingatlan a Balaton partjától, a hajóállomástól, a Nagystrandtól és a Petőfi sétánytól mindössze párszáz méterre található. A közelben üzletek, éttermek, szórakozóhelyek, a Víztorony, a Sió Pláza, valamint a Jókai park is könnyedén elérhetők – a vendégek számára tökéletes elhelyezkedés!Miért érdemes befektetni?•Egész évben üzemeltethető, stabil vendégkörrel rendelkezik•Siófok egyik legkeresettebb városrészén – az Aranyparton•Növekvő kereslet a minőségi turisztikai szálláshelyek iránt•Kiváló közlekedési kapcsolatok: autóval, busszal, vonattal is könnyen megközelíthető•Fejlesztési lehetőségekkel: bővítés, új funkciók kialakításaAz apartmanszálloda jelenlegi formájában is magas színvonalú szolgáltatást kínál, de egyúttal óriási potenciált rejt magában további fejlesztésekhez. Ideális választás üzleti célra, befektetésre vagy akár saját vendéglátóipari álmai megvalósítására.További információért, megtekintés egyeztetéséért keressen bizalommal!
Hirdető adatai
Hirdető neve: Otthon Centrum
Kapcsolattartó: Csizmadia-Schveiger Eszter
Hirdető telefonszáma: +36 70 388 6291
Honlap: -