Budapest, V.kerület
 

Ingatlan adatai
Irányár: 124 900 000 Ft
Típus: lakás (tégla)
Kategória: eladó
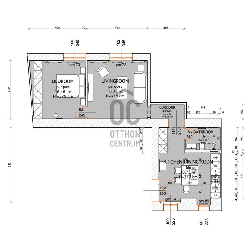
Alapterület: 61 m2
Állapota: -
Építés éve: 1920
Fűtés: gáz (cirko)
Felszereltség: -
Szobák száma: 2
Szintek száma: -
Telekterület: -
Kert mérete: -
Erkély mérete: -
Parkolás: -
Kilátás: utcai
Egyéb extrák:  
-
Részletes leírás
Budapest V. kerületének Dél-Belváros részében, a Váci utcában, 1920-ban épült, lift nélküli, jó állapotú ház 1. emeletén, 61 m² alapterületű, utcára néző, külön konyha-étkezős, 1 hálószobás, nappalis, 1 fürdőszobás, világos, jó lakás eladó.LAKÁSEz a 61 m²-es, első emeleti nagypolgári lakás tökéletes választás mindazoknak, akik a klasszikus építészeti értékeket szeretnék modern kényelemmel ötvözni. A lakás bútorozatlan, így új tulajdonosa saját ízlése szerint alakíthatja ki otthonát.A 3,8 méteres belmagasság és a nagy ablakok világos, tágas tereket biztosítanak. Az ablakok a csendes Pintér utcára néznek, így az otthon kellemesen nyugodt környezetet kínál a belváros szívében.A műszakilag kifogástalan állapotú ingatlan azonnal költözhető, a felújítás során modern és időtálló anyagok kerültek beépítésre.A konyhában korszerű műanyag nyílászárók, míg a szobákban fa, dupla üvegű ablakok találhatók, így a lakás energiatakarékos és jól szigetelt, miközben megőrzi klasszikus hangulatát.A terek arányosak, minden helyiség ablakos, a kialakítás praktikus és átgondolt.Ez a lakás azoknak szól, akik értékelik a nagypolgári eleganciát és az időtálló részleteket, de nem szeretnének lemondani a modern otthon kényelméről – mindezt Budapest egyik legkedveltebb utcájában, egy gondozott, patinás házban. ÉPÜLET1920-ban épült klasszikus pesti bérházként, amely a korszakra jellemző eklektikus homlokzati megoldásokat viseli magán — szimmetrikus felépítés, díszes ablakkeretek, tagolt párkányzat és visszafogott ornamentika jellemzi.Az eredeti szerkezet még a 19. századi városi lakóházak hagyományait követi, ugyanakkor a két világháború közötti építészeti ízléshez igazodva egyszerűsített formákkal dolgozik.A homlokzat és a lépcsőház megőrizte eredeti hangulatát, jó állapotú és karbantartott. A ház nem liftes, utcafrontján üzlethelyiségek találhatók.A lakóközösség barátságos, összetartó, a közös területek rendezettek és gondozottak, ami ritka érték ebben a városrészben.DÉL-BELVÁROSSzívesen megtapasztalná a 100 évvel ezelőtti arisztokrata életérzést? Keresve sem találhatna jobb helyet hozzá! Gyönyörű századfordulós polgári épületek, macskaköves utcák, kiváló kávézók és éttermek, egy utcányira a Váci utcától.Azoknak ajánlom a környéket, akik nem szívesen ülnek autóba, vagy ülnek tömegközlekedési eszközre. Hozzáteszem utóbbival minden gyorsan és egyszerűen megközelíthető, hiszen a 47-49 villamos, és a M3, M4-es metrók keresztül szelik a várost.A Fővám tér 2 perc gyalog csodálatosan felújított terével. A Vásárcsarnok az egyik legjobb a városban, minden nap friss termelői áru várja az ide érkezőket. Duna parti séta itt napi rutin lesz, és ha sok az energia, érdemes átgyalogolni a Szabadság-hídon, és felmenni a Gellérthegyre, ahonnan csodálatos kilátás nyílik a városra.Érdemes ellátogatni a Bálnába, melynek kiülős helyei közvetlenül a Duna parton vannak. Számos kiállítás is várja az ide látogatókat. Ha szívesen enged az édes élvezeteknek akkor a Kemenes Cukrászdában garantáltan talál a kedvére való süteményt, vagy a Levendula fagyizóban fagylaltot. Kiváló éttermek, kifőzdék, pékségek, reggeliző helyek közül választhat a nagyon elegánstól az egészen egyszerűig.Mondanom sem kell a Posta, bankok, boltok mind azonnal elérhetőek.MEGHÍVÓHa egy belvárosi otthont keresel, amely egyszerre nyújt polgári eleganciát és modern kényelmet, ahol a részletek harmóniája és az utcai panoráma teszi különlegessé a mindennapokat, hívj, és megmutatom Neked ezt a kivételes ingatlant!----------------------------------------------Díjmentes, bankfüggetlen hiteltanácsadással támogatjuk vevő ügyfeleinket a számukra legelőnyösebb finanszírozási döntések meghozatalában. Opcionálisan igénybe vehető kiegészítő szolgáltatásainkkal – mint ügyvédi közreműködés, energetikai tanúsítvány vagy villamos biztonsági felülvizsgálat – teljes körű szakmai támogatást nyújtunk az adásvétel folyamatának minden egyes lépésénél.A hirdetésben szereplő információk tájékoztató jellegűek. A tévedés és az árváltoztatás jogát fenntartjuk. Az esetleges elírásokért és technikai hibákért felelősséget nem vállalunk.
Hirdető adatai
Hirdető neve: Otthon Centrum
Kapcsolattartó: Simon Vivien Anna
Hirdető telefonszáma: +36 70 716 8381
Honlap: -