Hajdú-Bihar megye, Hajdúsámson
 

Ingatlan adatai
Irányár: 69 900 000 Ft
Típus: ház
Kategória: eladó
Alapterület: 93 m2
Állapota: új
Építés éve: 2027
Fűtés: gáz (cirko)
Felszereltség: -
Szobák száma: 4
Szintek száma: -
Telekterület: 720 m2
Kert mérete: 720 m2
Erkély mérete: -
Parkolás: -
Kilátás: -
Egyéb extrák:  
-
Részletes leírás
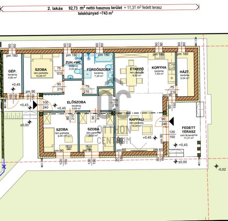
Sámsonkert szívében – 3 szoba+ nappalis ikerház várja!Ha egy új, modern otthont keresel, ami tökéletesen illik a dinamikus életstílusodhoz, akkor ne keress tovább! Hajdúsámson Sámsonkert városrészében egy kiváló állapotú, 93 négyzetméteres ház vár rád, amely ideális választás lehet akár első otthonodnak.2 lakóegység jellemzői:- 3 hálószoba melyből az egyik saját fürdővel rendelkezik-nappali-konyha étkező 1 légtérben mely csatlakozik egy 12 m2-es fedett teraszhoz- saját udvarrész 740 m2- osztatlan közös hányaddal ügyvédi okiratba foglalva- a vízvételi lehetőség házi vízművel ellátott, laborban bevizsgált minőséggel- szennyvíz elvezetés zárt tározóban kerül kialakításra-a vásárláshoz CSOK+, és babaváró támogatás igénybevehető!Erre az ingatlanra nem vehető fel az Otthon Start Hitel! A telek mérete kb. 740 négyzetméter, így bőséges teret biztosít a szabadidős tevékenységekhez, kertészkedéshez vagy akár egy kis szabadtéri pihenéshez. A házban 3 hálószoba + amerikai konyhás nappali lett tervezve, melyek világosak és barátságosak, így mindenki megtalálja a saját kis zugát. A két fürdőszoba pedig különösen praktikus, a szülői hálóhoz saját fürdő kapcsolódik, hiszen ezáltal a család minden tagja kényelmesen elférhet reggelente. A fűtést gáz cirkó rendszer biztosítja, míg a nyári hőségben a klíma gondoskodik a kellemes hőmérsékletről. Az ingatlan állapota kiváló, csak költözz be és élvezd az új életed! A környék rendkívül csendes és biztonságos, ideális helyszín a fiatalok számára. A közlekedés is kiváló, hiszen Hajdúsámson jól megközelíthető autóval, de a tömegközlekedési lehetőségek is adottak, így könnyedén elérheted Debrecen belvárosát is, ahol számos szórakozási és bevásárlási lehetőség vár rád.Az ár tartalmazza a telekhányadot, mely 8 millió Ft, és az 5% ÁFÁ-t!Az ingatlanra igénybevehető babaváró, CSOK+ és Otthon Start hitel 20%-os önerővel, a telekáron felül!A hirdetében szereplő árat november 30-ig szerződött ügyfeleknél tudjuk tartani!Ne maradj le róla!A közelben található boltok, éttermek és kávézók pedig hozzájárulnak a kényelmes mindennapokhoz. A folyamatosan épülő S-box számtalan vásárlási lehetőséggel kecsegtett. Ne hagyd ki ezt a remek lehetőséget, hiszen egy ilyen ingatlan ritkán kerül piacra! Ha kérdéseid lennének, vagy szeretnéd személyesen is megtekinteni az ingatlant, bátran keress meg! Bizalommal állok rendelkezésedre, hogy segítsek a döntésedben, és megtaláljuk számodra a legmegfelelőbb otthont. Az új életed kezdete csak egy lépésnyire van!
Hirdető adatai
Hirdető neve: Otthon Centrum
Kapcsolattartó: Rákosné Tímea
Hirdető telefonszáma: +36 70 412 5026
Honlap: -