Borsod-Abaúj-Zemplén megye, Ózd
 

Ingatlan adatai
Irányár: 65 000 Ft/hó
Típus: lakás (panel)
Kategória: kiadó
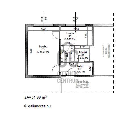
Alapterület: 35 m2
Állapota: -
Építés éve: 1990
Fűtés: távfűtés
Felszereltség: -
Szobák száma: 2
Szintek száma: -
Telekterület: -
Kert mérete: -
Erkély mérete: -
Parkolás: -
Kilátás: utcai
Egyéb extrák:  
-
Részletes leírás
Fedezze fel ezt a kiváló bérleti lehetőséget Ózdon, Borsod-Abaúj-Zemplén vármegyében, ahol egy 35 négyzetméteres, használt lakás várja új bérlőjét. Ez az ingatlan ideális választás lehet mindazok számára, akik kényelmes, de megfizethető otthont keresnek. A lakás két szobával rendelkezik, így tökéletesen alkalmas lehet egy kisebb család vagy egy fiatal pár számára. Az ingatlan fürdőszobája bár nem felújított, jól megtervezett, így a mindennapi használat során maximális kényelmet biztosít. A lakás állapota átlagos, ami lehetőséget ad arra, hogy saját ízlése szerint alakítsa ki a teret, A fűtés távfűtéses rendszerrel megoldott, ami kényelmes és költséghatékony megoldást nyújt a téli hónapokban, hiszen az energiafogyasztást egyedi mérés nélkül is kényelmesen nyomon követheti. A városban számos bolt, piac, és étterem található, ahol a mindennapi szükségleteit könnyedén kielégítheti. A közlekedési lehetőségek is kedvezőek, hiszen a város jól megközelíthető autóval, és a tömegközlekedés is megfelelően kiépített, így a munkába járás vagy a város felfedezése nem jelenthet problémát. A környék biztonságos és csendes, így Ön nyugodtan élvezheti a mindennapokat. A zöld területek közelsége lehetőséget biztosít a szabadban eltöltött időre, legyen szó sétáról, futásról. Amennyiben bármilyen kérdése merülne fel az ingatlannal vagy a bérlés folyamatával kapcsolatban, bizalommal keressen! Szívesen állok rendelkezésére, hogy segítséget nyújtsak Önnek a legmegfelelőbb otthon megtalálásában, és minden szükséges információt megosszak Önnel. Ne habozzon, hiszen ez a lehetőség gyorsan elérheti a bérlők érdeklődését!
Hirdető adatai
Hirdető neve: Otthon Centrum
Kapcsolattartó: Kocsis György
Hirdető telefonszáma: +36 70 461 9151
Honlap: -