Hajdú-Bihar megye, Debrecen
 

Ingatlan adatai
Irányár: 165 000 000 Ft
Típus: ház
Kategória: eladó
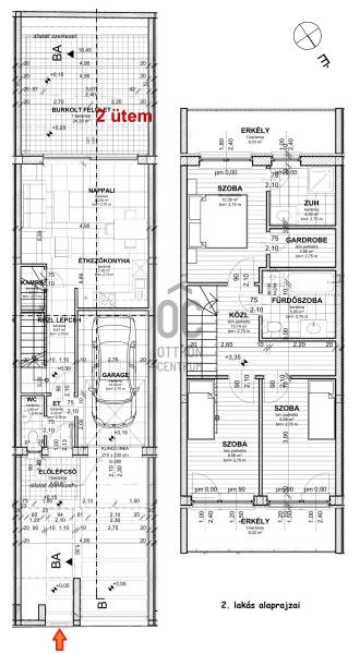
Alapterület: 132 m2
Állapota: új
Építés éve: 2025
Fűtés: gáz (cirko)
Felszereltség: -
Szobák száma: 4
Szintek száma: -
Telekterület: 120 m2
Kert mérete: 120 m2
Erkély mérete: 40 m2
Parkolás: -
Kilátás: -
Egyéb extrák:  
-
Részletes leírás
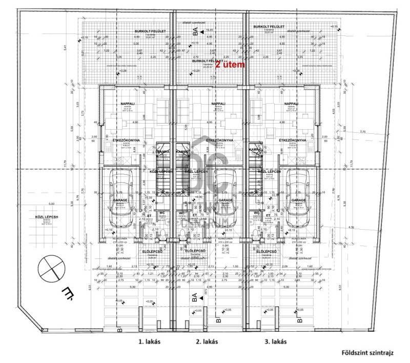
2. lakás: Br. 152 nm- amerikaikonyhás - étkezős nappali (27 nm)- teraszkapcsolat (24 nm)- garázs (15 nm)- vendégmosdó- 3 szoba (10-10-10 nm)- 2 fürdőszoba- gardrób- erkélyek (16 nm)Projekt bemutatásaDebrecen kedvelt, Nagyerdőhöz és az Egyetemekhez közeli részén modern, új építésű, extrákkal felszerelt sorház épül, átadása 2026. I. negyedév.Saját kertkapcsolatos otthonok várják tulajdonosaikat 2 szinten.A földszinten amerikaikonyhás - étkezős nappali terasz és kertkapcsolattal, vendégmosdóval és garázzsal. Az emeleten 2 gyerekszoba kádas fürdőszobával, míg a szülői háló saját fürdőszobával és gardróbbal felszerelt.Műszaki tartalmát extrákkal bővítették:- beépített konyhabútor gépesítve (Electrolux)- 2 db elektromos porszívó- vízlágyító berendezés- elektromos redőnyök és kapuk távirányítós vezérléssel- hőszivattyús klímák (h-tarifa)- riasztórendszer- padlófűtés.Tervezze a tavaszt már új otthonában!További részletkért és a megtekintést illetően várom hívását!
Hirdető adatai
Hirdető neve: Otthon Centrum
Kapcsolattartó: Némethné Zsuzsa
Hirdető telefonszáma: +36 70 412 3861
Honlap: -