Pest megye, Kakucs
 

Ingatlan adatai
Irányár: 96 000 000 Ft
Típus: ház
Kategória: eladó
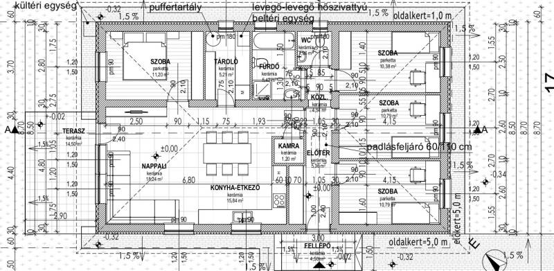
Alapterület: 102 m2
Állapota: új
Építés éve: -
Fűtés: -
Felszereltség: -
Szobák száma: 4
Szintek száma: -
Telekterület: 540 m2
Kert mérete: 540 m2
Erkély mérete: 15 m2
Parkolás: -
Kilátás: -
Egyéb extrák:  
-
Részletes leírás
Kakucson nyugodt mellékutcájában kínáljuk ezt az alaprajzról előfoglalható, modern, 4 szobás családi házat, mely tágas telekre épül, és kiváló elrendezésével, energia hatékony megoldásaival ideális választás lesz családok számára.Tervezett műszaki tartalom és jellemzők:4 hálószoba + amerikai konyhás nappaliPadlófűtés hőszivattyús rendszerrel – energiatakarékos, korszerű fűtésNagy, fedett terasz – tökéletes kültéri kikapcsolódásraModern belső terek, praktikus alaprajzHelyiségek 102 m2-en: amerikai konyhás nappali étkezővel teraszkapcsolattal, kamra, 4 szoba, gépészeti helyiség tárolóval, közlekedő, fürdőszoba wc-vel , wc.Terasz fa pergolával, kertre néz, 15 m2.Magas minőségű anyaghasználat, igény szerint még módosítható burkolatokkal, színekkelCsendes mellékutca, barátságos környezet, minimális forgalom.Előnyös lokáció:Budapest kb. 30 perc alatt elérhető (M5 autópálya)A településen megtalálható: iskola, óvoda, orvosi rendelő, boltok, éttermekKiváló infrastruktúra, dinamikusan fejlődő környezet, aktív helyi közösségA környéken rengeteg a lehetőség wellness és szabadidős tevékenységhez , kávézó fitnesz lehetőséggel, uszodával, kúriák, udvarházak, lovardák, autó-motor pálya rendezvényekkel ( Kakucs Ring).Budapestre jutás tömegközlekedéssel a félóránként induló, Népligetig közlekedő Volánbusz járattal lehetséges, továbbá a településen áthaladó vasúttal is megközelíthető. Legközelebbi város Dabas, Inárcstól 10 percre, ahol ügyintézéshez minden megtalálható, szolgáltatók (Bankok, Földhivatal, Kormányablak, NAV, Bíróság, Rendőrség, Gimnázium, Szakiskola) továbbá a bevásárlásokat is helyben lehet intézni ( Lidl,Tesco, Aldi, Spar, Pepco, rengeteg kis üzlet, havonta kirakodóvásár).Irodánk teljes körű INGYENES hitelügyintézést vállal az ország összes bankjával! Kulcsátadásig követjük az ügymenetet. Szerződéskötéshez, és bármilyen jogi kérdésben saját ügyvédeink állnak rendelkezésre !Az építkezés még nem kezdődött el, így most van lehetőség alaprajzról foglalni, akár egyedi igények figyelembevételével is!Lépjen kapcsolatba velünk még ma – kérje el az alaprajzot és foglalja le álmai otthonát még az építkezés kezdete előtt! Keressen akár hétvégén is! Átadás: 2026 nyár
Hirdető adatai
Hirdető neve: Nagy Ingatlan
Kapcsolattartó: Nagy Pál
Hirdető telefonszáma: 06 70 224 1279
Honlap: -