Budapest, XXI.kerület
Kossuth Lajos utca 

Ingatlan adatai
Irányár: 290 000 Ft/hó
Típus: lakás (tégla)
Kategória: kiadó
Alapterület: 112 m2
Állapota: felújított
Építés éve: 1980
Fűtés: házközponti egyedi méréssel
Felszereltség: -
Szobák száma: 5
Szintek száma: -
Telekterület: -
Kert mérete: -
Erkély mérete: -
Parkolás: -
Kilátás: -
Egyéb extrák:  
-
Részletes leírás
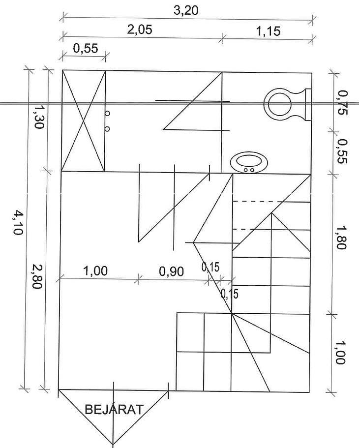
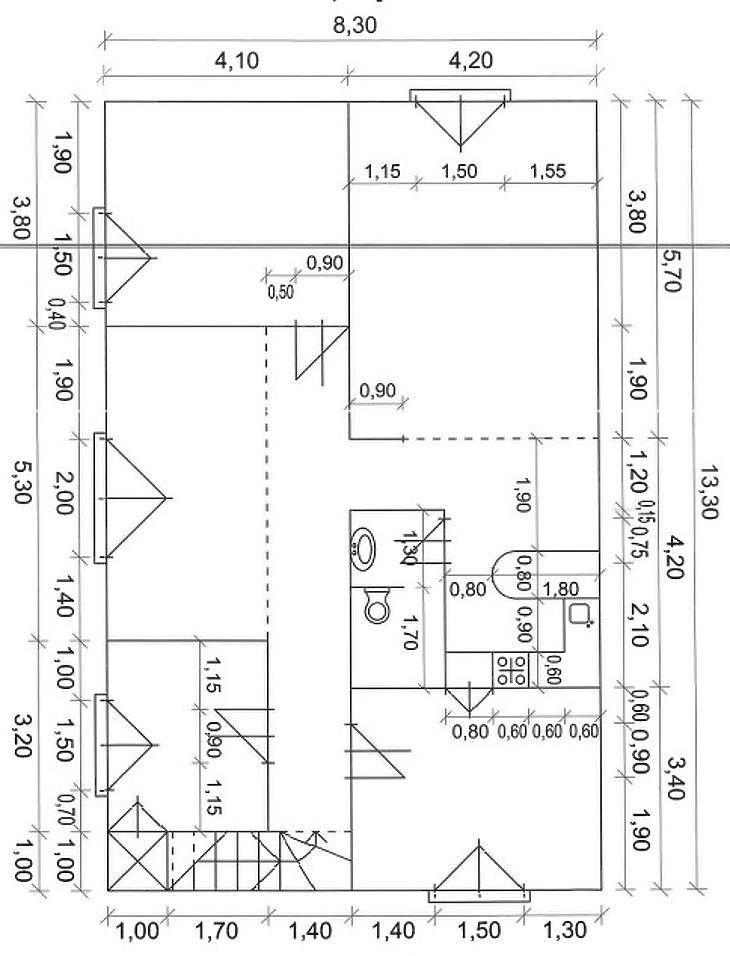
Kiadó iroda Csepelen – Kossuth Lajos utca 30–46. - IRODA HELYISÉGKiadó Csepelen, a Kossuth Lajos utca 30–46. szám alatt egy 112 m² alapterületű, kétszintes, világos és jól beosztású irodahelyiség-együttes. Az ingatlan öt különálló irodahelyiségből áll, így ideális választás lehet ügyvédi irodának, könyvelőirodának, IT cégnek, tanácsadó vállalkozásnak vagy bármilyen más adminisztratív tevékenységet végző cég számára.Az iroda nem akadálymentesített, a helyiségek lépcsőn keresztül közelíthetők meg. Ezért kérjük, hogy az érdeklődők ezt a szempontot is vegyék figyelembe a megtekintés előtt.Az alsó szinten egy tágas előtér található, ahol egy mosdóhelyiség és egy nagy tárolószekrény is helyet kapott. Itt található a villanyhálózat is, amely 3×16 amper teljesítményű, valamint ipari áram is rendelkezésre áll. A felső szinten öt különálló irodahelyiség, egy tárgyaló, egy teljesen felszerelt konyha, valamint egy külön mosdóhelyiség található.A konyha gépesített, mosogatógéppel, hűtőszekrénnyel és mikróval felszerelt. Az iroda világos és napos fekvésű, így a munkakörnyezet kellemes és inspiráló. Az épület csendes, nyugodt környezetben található, mégis könnyen megközelíthető, hiszen a HÉV-megálló és a buszmegálló néhány perces sétával elérhető.Az épületben központi fűtés működik, egyedi mérőórákkal ellátva, így a fogyasztás pontosan nyomon követhető. A fűtés díja fix 9.300 forint/hó. A közös költség 30.000 forint, a szemétdíj 2.900 forint havonta. Az irodaház kamerarendszerrel és őrzéssel is rendelkezik, amely folyamatos biztonságot garantál.A berendezés részben maradhat, ez megegyezés tárgyát képezi. Ha a bérlőnek valamire nincs szüksége, az eltávolítható. Az internet-hozzáférés igény szerint biztosított, szintén megállapodás alapján. A parkolás az épület előtt és a környéken ingyenes.A bérleti díj 290.000 forint + ÁFA/hó. Egy évnél hosszabb bérleti idő esetén az ár egyéni megállapodás alapján kedvezményesen módosítható.Ez az iroda tökéletes választás azok számára, akik egy kényelmes, biztonságos és modern munkahelyet keresnek Csepelen, frekventált, mégis nyugodt környezetben.
Hirdető adatai
Hirdető neve: MPD Hungary Kft.
Kapcsolattartó: Studio Casa Kft.
Hirdető telefonszáma: +36202721450
Honlap: -