Hajdú-Bihar megye, Hajdúnánás
 

Ingatlan adatai
Irányár: 119 000 000 Ft
Típus: kereskedelmi/ipari ingatlan
Kategória: eladó
Alapterület: 300 m2
Állapota: -
Építés éve: 2002
Fűtés: -
Felszereltség: -
Szobák száma: -
Szintek száma: -
Telekterület: -
Kert mérete: -
Erkély mérete: -
Parkolás: -
Kilátás: -
Egyéb extrák:  
-
Részletes leírás
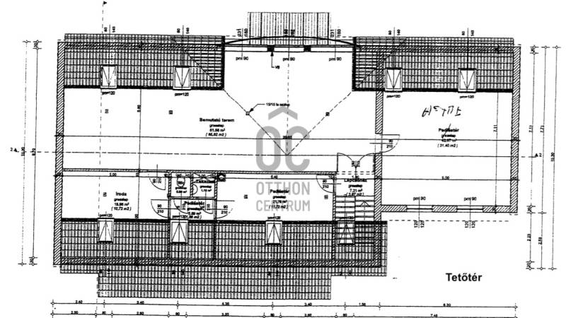
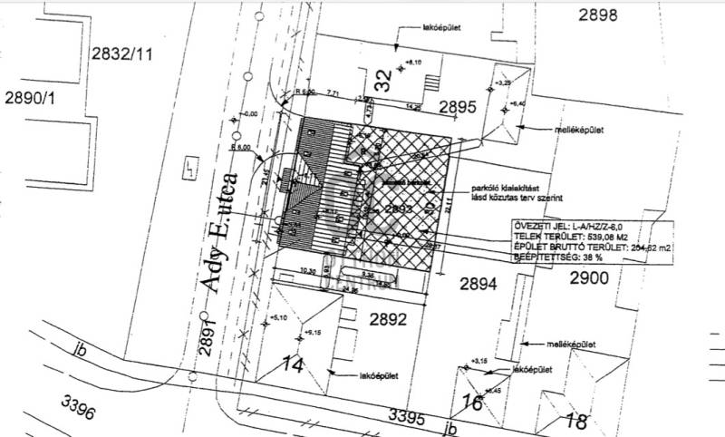
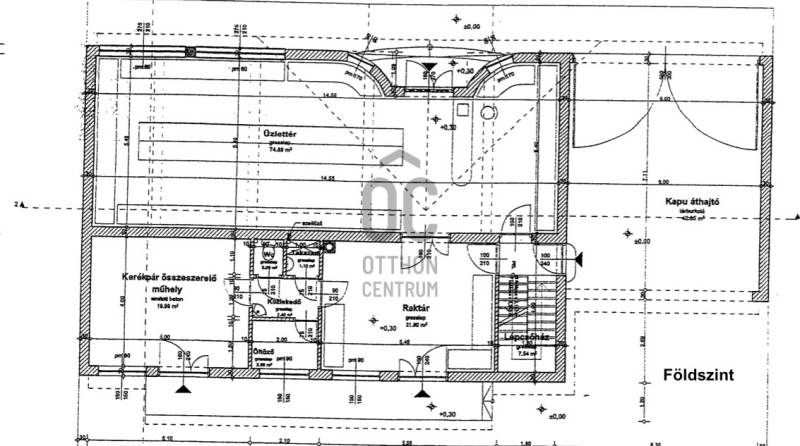
Belvárosi, 8 szobás, klimatizált üzletház eladó Hajdúnánáson – kiváló befektetés, jelenleg is bérbeadott!Hajdúnánás belvárosában, frekventált helyen, 540 m²-es telken kínálunk eladásra egy kétszintes, 8 szobás, klimatizált üzletházat, mely jelenleg teljes egészében bérbeadott, így azonnali hozamot biztosít új tulajdonosának.Az ingatlan a kétezres évek elején épült, beton alapra, tégla falazattal, cserepeslemez tetővel.Alapterülete: 325 m² (nettó 281 m²).Fűtését gázkazán biztosítja, emellett 5 darab hűtő-fűtő klíma gondoskodik a kellemes hőmérsékletről egész évben.Helyiségek beosztása:Földszint:1 db 75 m²-es, utcafronti, nagy helyiség2 külön szoba (22 és 20 m²)Konyha, WC, kézmosó, lépcsőházTetőtér:82/66 m²-es nagy szoba42/31 m²-es szoba2 kisebb szoba (21/11 m² és 19/10 m²)WC, tusoló, lépcsőházA teljesen térkövezett udvar akár 8 autó parkolására is alkalmas, valamint található rajta egy kb. 20 m²-es különálló épület, amelyben szoba, fürdőszoba és WC került kialakításra – lakhatásra vagy irodának is kiváló.Tulajdoni lapon: kivett lakóház, udvar, műszaki bolt megnevezés szerepel.Főbb jellemzők:Központi, belvárosi elhelyezkedés540 m² telek, 325/281 m² hasznos alapterület8 szoba + konyha + szociális helyiségekGázkazán és 5 klíma (hűtés-fűtés)Parkoló: akár 8 autó részéreKülönálló, 20 m²-es lakható melléképületStabil bérlői háttér, azonnali hozamÁr alkuképes!Kiváló választás befektetőknek, vállalkozóknak, vagy akár többfunkciós irodaháznak, rendelőnek, panziónak is.Jelenlegi bérleti szerkezete biztos, folyamatos bevételt nyújt!Az ingatlan megtekintése kizárólag előre egyeztetett időpontban lehetséges. Hívjon bizalommal – ne maradjon le erről a lehetőségről!
Hirdető adatai
Hirdető neve: Otthon Centrum
Kapcsolattartó: Szaszala Zsolt
Hirdető telefonszáma: +36 70 469 3681
Honlap: -