Pest megye, Alsónémedi
 

Ingatlan adatai
Irányár: 8 252 928 Ft/hó
Típus: kereskedelmi/ipari ingatlan
Kategória: kiadó
Alapterület: 3 375 m2
Állapota: -
Építés éve: -
Fűtés: -
Felszereltség: -
Szobák száma: -
Szintek száma: -
Telekterület: -
Kert mérete: -
Erkély mérete: -
Parkolás: -
Kilátás: -
Egyéb extrák:  
-
Részletes leírás
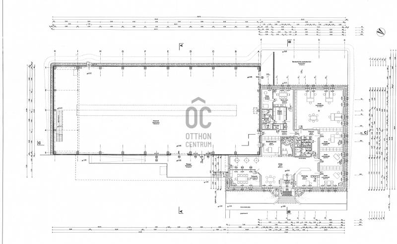
Alsónémedi Budapest déli agglomerációjában található. Pest vármegye egyik jelentős logisztikai és ipari központjaként van számontartva. Magyarország legnagyobb és legfejlettebb logisztikai területe az M0-ás autópálya déli szakaszának a vonzáskörzete, hiszen az M0-ás segítségével az ország összes autópályája elérhető Budapest kikerülésével. Az elmúlt években nagy fejlesztések történtek ebben a régióban. Budapest térségében a kisebb gyártóipari-termelő beruházást folytató cégek ezt a térséget preferálják most is. Az ingatlan három külön helyrajzi számon található. A három telek területe összesen 18.721 m2.• \"A\" telek: 7572 m2A telken egy nagyjából 5 éve épült modern cégközpont épülete áll. Ez az épület körülbelül 550 m2 irodát és bemutatótermet, valamint egy 1000 m2-es, 8 m belmagasságú modern raktárat foglal magába, amelyek egy szinten helyezkednek el. Az épület esztétikailag és energetikailag korszerű, \"A\" kategóriás.• \"B\" telek: 5702 m2, \"C\" telek: 5447 m2Az ingatlan másik fele 2 HRSZ-ből áll, amelyeken 1990 előtt épült fűtetlen raktárak állnak. A három épület területe összesen 2200 m2. Ezek hosszúkás alaprajzúak, U alakban egy parkolót fognak közre. Az épületek hosszanti oldalán 10 kapuval rendelkeznek, így akár 200 m2-es egységekre is átalakítás nélkül feloszthatók. Az egyik kisebb épület, amely 400 m2-es át lett alakítva alacsonyabb kategóriájú irodává, de raktárrá is bármikor visszaalakítható. Bérleti konstrukcióJelenleg a teljes ingatlanegyüttes bérbe van adva, viszont 2026. január 1-től ismét kiadó. A bérleti irányár raktárak esetében 5 euró / m2 / hó, irodák esetében 8 euró / m2 / hó.Bármilyen az ingatlannal kapcsolatos kérdéssel keressen bizalommal!
Hirdető adatai
Hirdető neve: Otthon Centrum
Kapcsolattartó: Nagy Tibor
Hirdető telefonszáma: +36 70 716 9901
Honlap: -