Budapest, IX.kerület
 

Ingatlan adatai
Irányár: 234 900 000 Ft
Típus: lakás (tégla)
Kategória: eladó
Alapterület: 155 m2
Állapota: -
Építés éve: -
Fűtés: -
Felszereltség: -
Szobák száma: 6
Szintek száma: -
Telekterület: -
Kert mérete: -
Erkély mérete: -
Parkolás: -
Kilátás: utcai
Egyéb extrák:  
-
Részletes leírás
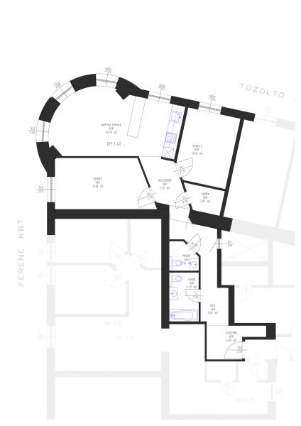
Budapest IX. kerületében, a Ferenc körút egyik legszebb, liftes, 1893-ban épült ház 4. emeletén kínálunk megvételre egy összesen 155 m²-es, utcai nézetű, saroklakást, amely két különálló, de könnyedén egybenyitható lakásból áll. Az ingatlan összesen 4 hálószobát, 2 amerikai konyhás nappalit, valamint több fürdőt és mellékhelyiséget foglal magában, így ideális nagycsalád részére, kétgenerációs otthonnak vagy akár prémium befektetésnek.LAKÁSA lakások teljes körű felújításon estek át, műszakilag és esztétikailag egyaránt újszerűek. A magas, 330 cm-es belmagasság, a hatalmas nyílászárók és a sarokelhelyezkedés miatt a terek egyszerre világosak, reprezentatívak és otthonosak. A megújulás során prémium minőségű anyagok és modern technológia került alkalmazásra:- 3 rétegű üvegezésű, műanyag nyílászárók- Távirányítós, motoros alumínium redőnyök- Új aljzatbeton lépésálló hőszigeteléssel- Teljeskörű új elektromos- és gépészeti hálózat (földszintről újravezetve)- Ariston programozható villanybojler(ek)- Elektromos hőszivattyús fűtés-hűtés padlófűtéssel- H-tarifás mérőóra igénylés folyamatban- Modern, teljesen gépesített konyhákA tágas terek, a modern műszaki tartalom és a klasszikus nagypolgári hangulat találkozása igazán értékálló és különleges otthont eredményez.Az ingatlan egy nagyobb albetétből lett fizikailag három, külön bejáratú lakásra osztva (83 m², 72 m² és 33 m²). A kisebb lakás már nem elérhető. A szétválasztás során a lakások közötti falak hangszigeteltek, így a lakótér zavartalanul élvezhető. A megosztás ügyvédi megosztó szerződés alapján történt, amely pontosan rögzíti a lakások kizárólagos használatú területeit és a közös részeket, így a használat jogilag rendezett és átlátható.HÁZA Ferenc körút 39. szám alatti, impozáns, liftes bérház a 19. század végi nagykörúti építészeti fellendülés egyik gyöngyszeme. Az 1893-ban épült, historizáló stílusú ház Amon József megbízásából készült, a korszak elegáns, polgári városi palotáinak jellegzetes képviselője.A több mint százéves épület megőrizte eredeti karakterét: tágas, világos lépcsőháza, kovácsoltvas korlátai és korabeli részletei a múlt hangulatát idézik. A társasház rendezett, stabil anyagi helyzetű, lakóközössége igényes és összetartó. A közös költség kb. 15.000 Ft, amely tartalmazza a ház fenntartását és a közös területek karbantartását. Ezen felül az áram- és vízdíj fogyasztás alapján fizetendő.KÖRNYÉKA nagykörút egyik legélénkebb és legkedveltebb szakaszán helyezkedik el, a város szívében, ahol a klasszikus pesti hangulat találkozik a modern városi életstílussal. Az utca 19. század végi építészeti arculatát őrzi, elegáns homlokzataival és pezsgő utcai életével igazi történelmi városképi érték.Közlekedés:• A 4-6-os villamos a ház előtt áll meg, így a város bármely pontja gyorsan és kényelmesen megközelíthető, akár éjszaka is.• Az M3-as és M4-es metróvonalak néhány perc sétával elérhetők.• A 2-es, 47-es, 49-es és 51-es villamosvonalak, valamint számos busz- és trolijárat biztosítja a kiváló közlekedési kapcsolatokat.• A Boráros tér gyalogosan is elérhető, ahonnan HÉV- és elővárosi járatok indulnak a városkörnyékre.Egyetemek közelsége:• A Corvinus, az ELTE és a BME egyetemek 10–15 percen belül megközelíthetők.• A Semmelweis Egyetem (SOTE) gyalogosan is rövid sétával elérhető, így a környék ideális választás diákok és oktatók számára is.Kikapcsolódás és szórakozás:• A Ráday utca hangulatos éttermei, borbárjai és kávézói pár perc sétára találhatók.• A Duna-part, a Bakáts tér és a Nagy Vásárcsarnok a környék legkedveltebb találkozóhelyei közé tartoznak.• A Corvin-negyed bevásárló- és szórakoztató központja, valamint a mozi gyalogosan is könnyen elérhető.• A Boráros tér közelsége további programlehetőségeket és kiváló közlekedési kapcsolatokat biztosít.Szolgáltatások:• Bankok, gyógyszertárak, posta, valamint a mindennapi ügyintézéshez szükséges szolgáltatások a közelben megtalálhatók.• A Nagy Vásárcsarnok és a környék üzletei széles választékot kínálnak a bevásárláshoz.• A környék infrastruktúrája kiváló, biztonságos, folyamatosan fejlődő városi környezet, ahol a belvárosi élet minden előnye kézzelfogható közelségben van.Felkeltettem érdeklődésed? Ha el tudod itt képzelni magad vagy további kérdésed lenne, hívj bizalommal!----------------------------------------------Díjmentes, bankfüggetlen hiteltanácsadással támogatjuk vevő ügyfeleinket a számukra legelőnyösebb finanszírozási döntések meghozatalában. Opcionálisan igénybe vehető kiegészítő szolgáltatásainkkal – mint ügyvédi közreműködés, energetikai tanúsítvány vagy villamos biztonsági felülvizsgálat – teljes körű szakmai támogatást nyújtunk az adásvétel folyamatának minden egyes lépésénél.A hirdetésben szereplő információk tájékoztató jellegűek. A tévedés és az árváltoztatás jogát fenntartjuk. Az esetleges elírásokért és technikai hibákért felelősséget nem vállalunk.
Hirdető adatai
Hirdető neve: Otthon Centrum
Kapcsolattartó: Simon Vivien Anna
Hirdető telefonszáma: +36 70 716 8381
Honlap: -