Vas megye, Bük
 

Ingatlan adatai
Irányár: 46 500 000 Ft
Típus: lakás (tégla)
Kategória: eladó
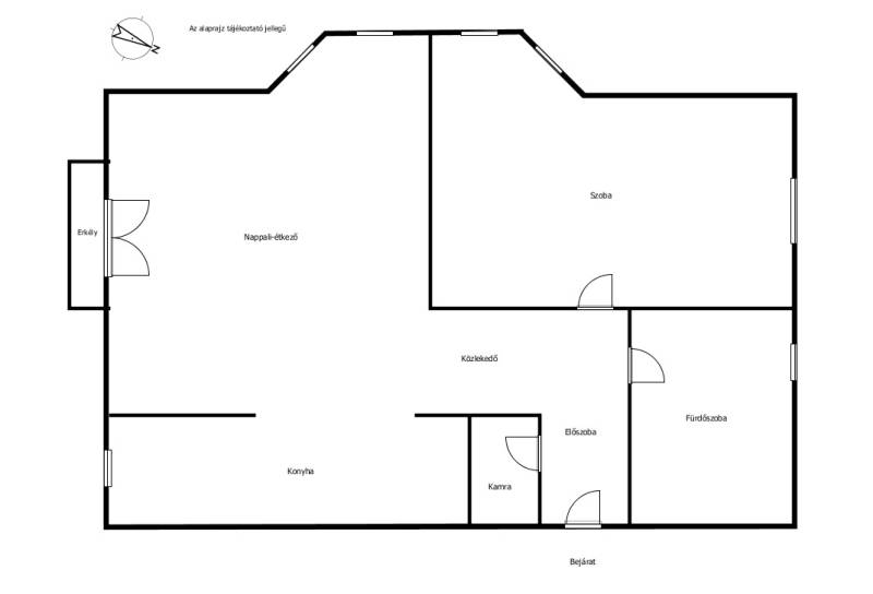
Alapterület: 59 m2
Állapota: -
Építés éve: 2000
Fűtés: gáz (cirko)
Felszereltség: -
Szobák száma: 2
Szintek száma: -
Telekterület: -
Kert mérete: -
Erkély mérete: 3 m2
Parkolás: -
Kilátás: kertre néző
Egyéb extrák:  
-
Részletes leírás
Első lakásvásárló? Saját vagy befektetési céllal vásárolna? Megtalálta a legjobb megoldást! Ide csak költözni kell!Bük városában vált eladóvá ez az 59 nm-es, kétszobás, kiváló állapotú, 1. emeleti, erkélyes lakás. A 2000-ben épült 4 lakásos társasház egy családi házas övezet rendkívül csendes, nyugodt utcájában található, parkosított, zárt kerttel. A frissen felújított, 2 szobás lakást jó beosztás, tágas, világos terek jellemzik. A redőnnyel, szúnyoghálókkal szerelt hőszigetelt nyílászáróknak és a ház szigetelésének köszönhetően fenntartási költsége nagyon kedvező. A lakás melegéről és melegvíz-ellátásáról gáz cirkó kazán gondoskodik, radiátoros hőleadással, illetve egy hűtő-fűtő klíma ad további alternatívát.A lakásban az alábbi felújítások történtek:- belső és külső fa nyílászárok újra festése és a tömítő gumik kicserélése- új redőnyök és szúnyoghálók- a fürdőszoba teljes körű felújítása- szobában valódi új olajozott tölgy hajópadló került lerakásra- a falakon új, tölgy akusztikus fali panel- új lámpák- a lakás teljes egészében ki van festve- a nappaliban új radiátorok, a többi helyiségben szervizelve, kiváló  állapotban vannak, minden radiátoron új termosztát fejek- a kazán és a két éve szerelt klíma szervizelve- új páraelszívó- Internet - Cell kabelEgy gépjármű számára parkolás biztosított a társasház kertjében, valamint, a lakáshoz tartozó kerti kisház nyújt tárolási lehetőséget. A lakás elhelyezkedése és adottságai miatt ideális választás lehet azok számára, akik biztos alapokra szeretnék helyezni befektetéseiket, vagy új otthonukat keresik.Ha Ön is szeretne többet megtudni erről a remek lehetőségről, vagy kérdései lennének az ingatlannal kapcsolatban, ne habozzon, keressen bizalommal! Szívesen állok rendelkezésére, hogy segítsek a legjobb döntés meghozatalában.Az ingatlanpiac folyamatosan változik, ezért érdemes lépést tartani a lehetőségekkel, ne hagyja ki ezt a nagyszerű ajánlatot!Hitelre van szüksége? Az Otthon Centrum az ország egyik legnagyobb és legmegbízhatóbb hitelközvetítőjeként, teljes körű és díjmentes hitel ügyintézéssel, biztosításkötéssel áll rendelkezésére! Kérje személyre szabott ajánlatunkat Kollégáinktól!Válassza ki az Önnek legmegfelelőbbet!Bük lakás, első lakásvásárlás, 2 szoba, csendes környék, osztrák határ közelsége, felújított, kiváló állapot, világos, jó közlekedés
Hirdető adatai
Hirdető neve: Otthon Centrum
Kapcsolattartó: Bíró Brigitta
Hirdető telefonszáma: +36 70 412 4221
Honlap: -