Pest megye, Piliscsaba
 

Ingatlan adatai
Irányár: 49 900 000 Ft
Típus: lakás (tégla)
Kategória: eladó
Alapterület: 40 m2
Állapota: -
Építés éve: 2005
Fűtés: gáz (cirko)
Felszereltség: -
Szobák száma: 1
Szintek száma: 5
Telekterület: -
Kert mérete: -
Erkély mérete: -
Parkolás: -
Kilátás: -
Egyéb extrák:  
-
Részletes leírás
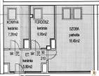
EGYEDI AJÁNLAT ♥ CSAK A HEXITŐLPiliscsabán, az egyetem közelében, jó állapotú téglalakás eladó liftes ház 5.emeletén. A lakás 2005-ben épült, elosztása kitűnő. Az előszobából külön nyílnak a helyiségek: étkezős konyha, tágas fürdőszoba, egy szoba. Saját gázkazán biztosítja a fűtést és a használati melegvizet is. Az ingatlan tehermentes, egy festéssel akár azonnal költözhető.A közelben játszótér, iskola, óvoda, cukrászda, vasútállomás és karnyújtásnyira az erdő.Kulccsal mutatom, hívjon!Szabó HelgaHEXI INGATLAN - OTTHON A PILISBEN2010. óta a PILISI INGATLANOK IRODÁJA
Hirdető adatai
Hirdető neve: Hexi Ingatlan
Kapcsolattartó: Szabó Helga
Hirdető telefonszáma: +36 70 328 0696
Honlap: -