Budapest, XIII.kerület
 

Ingatlan adatai
Irányár: 84 900 000 Ft
Típus: lakás (tégla)
Kategória: eladó
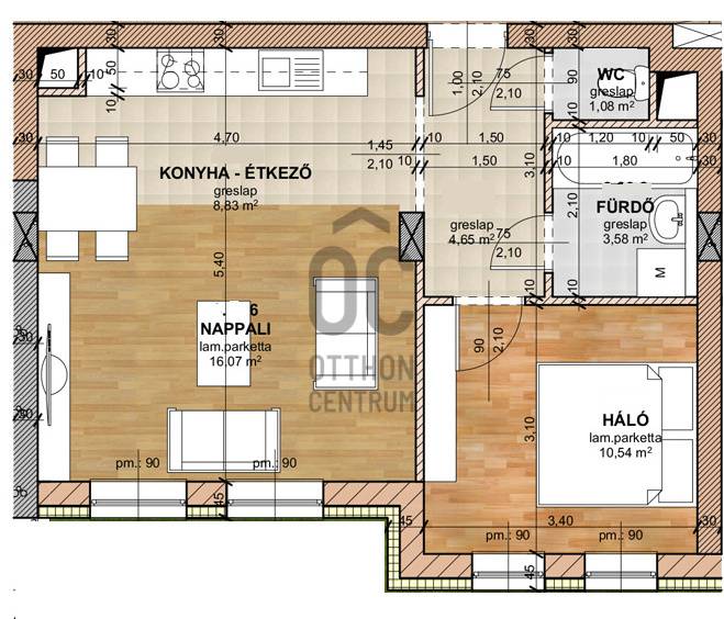
Alapterület: 45 m2
Állapota: -
Építés éve: 2018
Fűtés: házközponti egyedi méréssel
Felszereltség: -
Szobák száma: 2
Szintek száma: -
Telekterület: -
Kert mérete: -
Erkély mérete: -
Parkolás: -
Kilátás: kertre néző
Egyéb extrák:  
-
Részletes leírás
Budapest XIII. kerületének Angyalföld városrészén, a Reitter Ferenc utcában, a Béke tér szomszédságában, 2018-as építésű, 3. emeleti, 45 m² alapterületű, gondozott belső kerte néző, DNy-i tájolású, csendes, világos, újszerű állapotú teljeskörűen bútorozott és gépesített kétszobás otthon eladó. A lakás nemcsak esztétikailag nyújt minőségi élményt, hanem praktikus és élhető is egyben.Kifogástalan műszaki és esztétikai állapotának köszönhetően, azzonnal birtokba vehető az ingatlan.A vételár részét képezik az alábbi minőségi bútorok és beépített gépek:- gépesített konyha bárpulttal és bárszékekkel- Eletrolux mosogatógép, sütő és beépített mikró, AEG mosógép, indukciós főzőlap, párelszívó- kanapé, fali tükör, falra szerelt nappali bútor- franciaágy, gardróbszekrény, komód, függönyök- klíma A társasházat 2018/2019-ben adták át, lépcsőházában hat szinten összesen 79 lakás található.A lépcsőház tiszta, karbantartott. A hulladékgyűjtők külön helyiségben kerültek elhelyezésre. A közösségi tereket folyamatosan gondozzák, a biztonságot kamerarendszer segíti. A lakóközösséget főleg fiatalok és családosok alkotják.Közös költség: 15.300 Ft/hóFűtés: házközponti egyedi mérésselTároló - opcionálisan megvásárolható 3nm-es tároló, amely közvetlen a lakás mellett található.Teremgarázzsal a tulajdonos nem rendelkezik.Megtekintéssel kapcsolatban keressen bizalommal.
Hirdető adatai
Hirdető neve: Otthon Centrum
Kapcsolattartó: Mészáros Norbert
Hirdető telefonszáma: +36 70 388 5566
Honlap: -