Heves megye, Poroszló
 

Ingatlan adatai
Irányár: 55 000 000 Ft
Típus: ház
Kategória: eladó
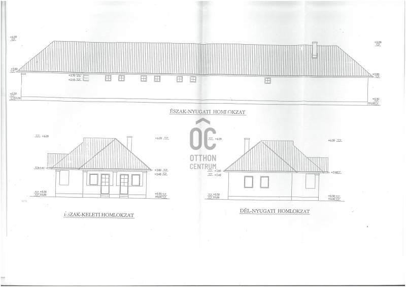
Alapterület: 200 m2
Állapota: -
Építés éve: 2005
Fűtés: gáz (cirko)
Felszereltség: -
Szobák száma: 8
Szintek száma: -
Telekterület: 1 245 m2
Kert mérete: 1 245 m2
Erkély mérete: -
Parkolás: -
Kilátás: -
Egyéb extrák:  
-
Részletes leírás
Eladó többfunkciós ingatlan Poroszló csendes, zöldövezeti részén – ideális apartmanozásra, befektetésre vagy többgenerációs együttélésrePoroszlón, a Tisza-tó közvetlen közelében kínálunk megvételre egy kb. 200 m²-es, több lakóegység kialakítására is alkalmas ingatlant, 1245 m²-es, széles, nagy telekkel. A környék rendezett, zöldövezeti, aszfaltozott útról közelíthető meg, a telek teljesen közművesített. A fűtést gázcirkó és radiátoros rendszer biztosítja.Az épületben 8 szoba és 7 fürdőszoba található, amely rendkívül rugalmas térkihasználást tesz lehetővé. A helyiségek száma és kialakítása miatt az ingatlan apartmanházként, vendégházként vagy többgenerációs otthonként is optimálisan működtethető. A külön bejáratok és a nagy számú fürdőhelyiség lehetőséget adnak a privát, jól szeparált életterek kialakítására.A telek mérete az ingatlan egyik erőssége: a széles, nagy kert további bővítést, teraszokat, közösségi tereket, játszó- vagy pihenőkertet is befogadhat. A környezet nyugodt, a természet közelsége pedig garantált.Poroszló kiemelt turisztikai térség, a Tisza-tó közelsége miatt ideális választás vízitúrázóknak, horgászoknak, természetkedvelőknek. A nyári szezonban magas a vendégforgalom, így befektetési célra különösen kedvező. A nagy alapterület és a szobaszám miatt nagyobb társaságok, baráti körök, családok számára is optimális nyaralóhely lehet, egyidejűleg több vendéget is kényelmesen fogad.Fő paraméterek és benyomások:200 m² hasznos alapterület1245 m², széles, jól hasznosítható telek8 szoba7 fürdőszobaKözművesített, aszfaltos utcábanGázcirkós, radiátoros fűtésCsendes, zöldövezeti környezetApartmanozásra, vendégháznak, többgenerációs otthonnak is kiválóTisza-tó közelsége, erős turisztikai potenciálAz ingatlan mérete, elhelyezkedése és adottságai miatt olyan vevőnek ideális, aki értékeli a tágas tereket, a természet közelségét, és szeretné saját elképzelései szerint tovább formálni ezt a sok lehetőséget rejtő házat.
Hirdető adatai
Hirdető neve: Otthon Centrum
Kapcsolattartó: Szilágyi János
Hirdető telefonszáma: +36 70 388 6356
Honlap: -