Pest megye, Kakucs
Ingatlan adatai
Irányár:
85 000 000 Ft
Típus:
ház
Kategória:
eladó
Alapterület:
95 m
2
Állapota:
új
Építés éve:
-
Fűtés:
-
Felszereltség:
-
Szobák száma:
4
Szintek száma:
-
Telekterület:
400 m
2
Kert mérete:
400 m
2
Erkély mérete:
12 m
2
Parkolás:
-
Kilátás:
-
Egyéb extrák:
-
Részletes leírás
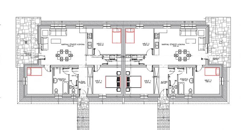
Kakucson nappali+3 szobás új építésű ikerház fél 400 nm-es telekkel eladó !Várható átadás 2026 NYÁR !
Hirdető adatai
Ingatlan hirdetés
ajánlása
Hirdetésfigyelő
Hirdető neve:
Nagy Ingatlan
Kapcsolattartó:
Nagy Pál
Hirdető telefonszáma:
06 70 224 1279
Honlap:
-