Pest megye, Dabas
 

Ingatlan adatai
Irányár: 89 900 000 Ft
Típus: ház
Kategória: eladó
Alapterület: 108 m2
Állapota: -
Építés éve: 2025
Fűtés: egyéb
Felszereltség: -
Szobák száma: 5
Szintek száma: -
Telekterület: 1 000 m2
Kert mérete: 1 000 m2
Erkély mérete: -
Parkolás: -
Kilátás: -
Egyéb extrák:  
-
Részletes leírás
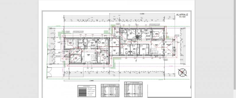
Dabason megvételre kínálok 1000 nm-es telekrészen, egy nettó 108 nm-es, újépítésű ikerházat. Az ingatlanban 3 szoba, konyha- étkező-nappali, spejz, fürdőszoba, mellékhelyiség található. A két lakás, tárolóval kapcsolódik, külön udvari bejáróval rendelkeznek, nincs közös bejáró!!!A ház 30-as Ytong-ból épül, 15 cm-es szigeteléssel, nemes vakolattal ellátott, betoncseréppel fedett, elektromos fűtés biztosítja a ház melegét padlófűtésen keresztül. A nyílászárók szúnyoghálóval, redőnnyel ellátottak. A burkolatok, a belső ajtók, szaniterek saját ízlés szerint választhatóak a meghatározott árak szerint. . Várható átadás: 2026 Az 1. lakás teljes vételára 97 m2-es:76,900.000 Ft A 2. lakás teljes vételára 108 m2-es:89,900.000 Ft Dabas központtól 5 percre Óvoda, Iskola, vásárlási lehetőségek, Busz, Vonat a közelben. Elkészült, átadott referenciamunkák megtekinthetők. Hívjon bizalommal, hogy személyesen bemutathassam. Vass Erika
Hirdető adatai
Hirdető neve: Dabas Régió
Kapcsolattartó: Vass Erika
Hirdető telefonszáma: 06204004026
Honlap: -