Bács-Kiskun megye, Érsekcsanád
 

Ingatlan adatai
Irányár: 150 000 000 Ft
Típus: ház
Kategória: eladó
Alapterület: 345 m2
Állapota: új
Építés éve: 1980
Fűtés: gáz (cirko)
Felszereltség: -
Szobák száma: 10+1
Szintek száma: -
Telekterület: 1 193 m2
Kert mérete: 1 193 m2
Erkély mérete: 20 m2
Parkolás: -
Kilátás: utcai
Egyéb extrák:  
-
Részletes leírás
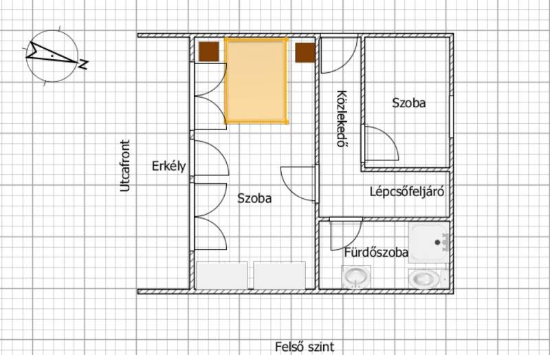
Kétfunkciós családi ház és idősotthon eladó Érsekcsanádon!Érsekcsanád központi részén eladásra kínálunk egy 220 m²-es, kétszintes családi házat, amely korábban engedéllyel működő idősotthonként is funkcionált. Az ingatlan kiváló lehetőség nagycsaládosok, vállalkozók vagy szociális intézményt üzemeltetni kívánók számára!A családi ház főbb jellemzői: 220 m² – kétszintes, tágas elrendezés Alsó szint:FogadóhelyiségKonyha + ebédlőMosókonyha, fürdőszoba, külön mosdóKözlekedő3 szoba Tetőtér:Közlekedő2 szobaFürdőszoba, mosdó✅ 80-as évek elején épült, tégla szerkezetű, szigetelt homlokzattal✅ Új műanyag nyílászárók Fűtés: Westen gázkazán + vegyes tüzelésű Totya kazánHivatalos engedéllyel működtetett idősotthon (117 m²): Beltéri kialakítás:✔ 3 különálló szoba (1 ágyas, 2 ágyas, 3 ágyas)✔ Társalgó✔ Mosdó és fürdőszoba✔ Külön bejáratú apartman saját fürdőszobával és mosdóval✔ Orvosi szoba + elkülönítő fürdőszobávalKülső terület és extrák: 1193 m²-es parkosított udvar – több pihenőhellyel 2 mobil tároló Teljesen gépesített konyha – a vételár részét képezi További berendezések megegyezés szerintEz az ingatlan remek befektetési lehetőség azok számára, akik szociális intézményt üzemeltetnének vagy egy tágas, több generációs otthont keresnek!Irányár:150.000.000Ft Ne hagyja ki ezt az egyedülálló lehetőséget – hívjon most, és tekintse meg személyesen!
Hirdető adatai
Hirdető neve: GDN Ingatlanhálózat
Kapcsolattartó: Farkasné Kasza Brigitta
Hirdető telefonszáma: +36-20-326-3059
Honlap: -