Pest megye, Szentendre
 

Ingatlan adatai
Irányár: 265 000 000 Ft
Típus: ház
Kategória: eladó
Alapterület: 115 m2
Állapota: új
Építés éve: 2025
Fűtés: -
Felszereltség: -
Szobák száma: 6
Szintek száma: -
Telekterület: 350 m2
Kert mérete: 350 m2
Erkély mérete: 30 m2
Parkolás: -
Kilátás: kertre néző
Egyéb extrák:  
-
Részletes leírás
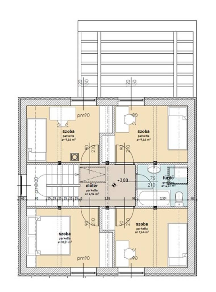
Szentendrén, kiváló lokációban, a Bükkös-patak parton eladó a fotókon látható, 2025-ös építésű, két szintes, nappali plusz 5 szobás családi ház. A nívós építész által tervezett házat alacsony fenntartási költségek, magas minőség és nyugodt, otthonos, igazi Cosy hangulat jellemzi.A fűtésről energiahatékony padlófűtéssel kombinált Remeha hőszivattyú, a hűtésről pedig fan coil rendszer gondoskodik. Az energia hatékonyságot ezek mellett napelem rendszer segíti és a nappaliban modern kivitelezésű hangulatos cserépkályha is található külső levegő áramoltatással. A ház energetikai minősítése: A++ Mindenhol természetes anyagokkal, fa padlóval, tölgyfa konyhabútorral és mészkő burkolattal találkozunk.Környék is nagyon hangulatos, a patak partján mókusok mellett sétálva, bicikli úton biciklizve indulhat a nap, miközben a közeli híres pékségbe térhetünk be friss reggeliért. A továbbiakban pedig a közeli 5*-os uszodában egy wellness élmény koronázhatja meg a napot.Az iskolák, óvodák, gimnáziumok is ideális közelségben vannak.Ha felkeltette érdeklődését és szeretné személyesen is látni, várom hívását a hét bármely napján és szívesen megmutatom Önnek.Amennyiben nem rendelkezik a teljes vételárral, bankfüggetlen hitelcentrumunk minden elérhető bank és hitelintézet ajánlatát versenyezteti az Ön kedvéért, ráadásul díjmentesen. Önnek nincs más dolga, mint elbeszélgetni munkatársunkkal, aki a hallott információk alapján versenyre hívja a bankokat, hogy Ön hosszú távon is a legjobb konstrukciót kaphassa. A legjobb ajánlatokból végül Ön választhatja ki a nyertest. Munkatársaink sokéves szakmai tapasztalattal várják Önt, előre egyeztetve akár a normál munkaidő után is.
Hirdető adatai
Hirdető neve: GDN Ingatlanhálózat
Kapcsolattartó: Kovács Dénes
Hirdető telefonszáma: +36-30-202-2228
Honlap: -