Fejér megye, Tordas
 

Ingatlan adatai
Irányár: 149 900 000 Ft
Típus: ház
Kategória: eladó
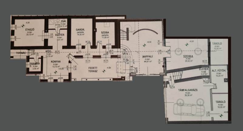
Alapterület: 196 m2
Állapota: -
Építés éve: 1950
Fűtés: gáz (cirko)
Felszereltség: -
Szobák száma: 6+2
Szintek száma: -
Telekterület: 800 m2
Kert mérete: 800 m2
Erkély mérete: 25 m2
Parkolás: -
Kilátás: udvari
Egyéb extrák:  
-
Részletes leírás
Értéket őrző otthon Tordason – múlt és jelen egyensúlyaEz az ingatlan nem trendekre épül, hanem értékre.Tordas csendes, zöld, családias részén egy eredeti vályog parasztház került igényesen felújításra, majd tudatosan, modern szemlélettel kibővítésre – úgy, hogy a ház megőrizze karakterét, mégis megfeleljen a mai elvárásoknak.A régi épületrész vályogfalazata természetes klímát és időtálló szerkezetet ad, míg a 2015-ben megvalósult bővítés már modern műszaki megoldásokkal és téglafalazattal készült. Ez a kettő együtt adja azt a ritka kombinációt, ami értéktartó, élhető és hosszú távon is stabil választás.A 196 m² lakótér, a 44 m²-es nappali, a nyitott konyhához kapcsolódó 20 m²-es étkező, valamint a jól szeparálható terek nemcsak kényelmet jelentenek, hanem átalakíthatóságot és jövőállóságot is. A házban három hálószoba gardróbbal, két fürdőszoba, háztartási helyiség, mozi- és játékszoba, valamint infraszauna is helyet kapott.A lakótérhez egy 25 m²-es terasz kapcsolódik, a tárolási lehetőségeket pedig egy 50 m²-es padlástér egészíti ki. A komfortérzetről gázkazán, elektromos panelek és kandalló gondoskodik, a hálószobák klimatizáltak.Az 800 m²-es telek parkosított, a térkövezett udvar elektromos kapun keresztül közelíthető meg, a kertben ősfák és örökzöldek teremtenek intim, elszeparált környezetet. A 40 m²-es garázs mellett egy 30 m²-es tároló, valamint egy külön, 4 m²-es fürdő is kialakításra került, a garázs feletti teraszos rész pedig további, hosszú távon is értéket növelő lehetőségeket rejt.Tordas elhelyezkedése, zöld környezete és Budapest közelsége önmagában is értéket képvisel, de egy ilyen minőségben megőrzött és továbbgondolt ingatlan ritka lehetőség a piacon.Ez nem egy „új építésű kompromisszum”.Ez egy történettel rendelkező, masszív alapokon álló otthon, ami hosszú távon is tartja az értékét. Tordas | Budapest 20 percAMENNYIBEN NEM RENDELKEZIK A TELJES VÉTELÁRRAL, segítünk Önnek megtalálni a legjobb megoldást!
Hirdető adatai
Hirdető neve: GDN Ingatlanhálózat
Kapcsolattartó: Reiter Róbert
Hirdető telefonszáma: +36-70-942-3518
Honlap: -