Budapest, II.kerület
 

Ingatlan adatai
Irányár: 299 000 000 Ft
Típus: ház
Kategória: eladó
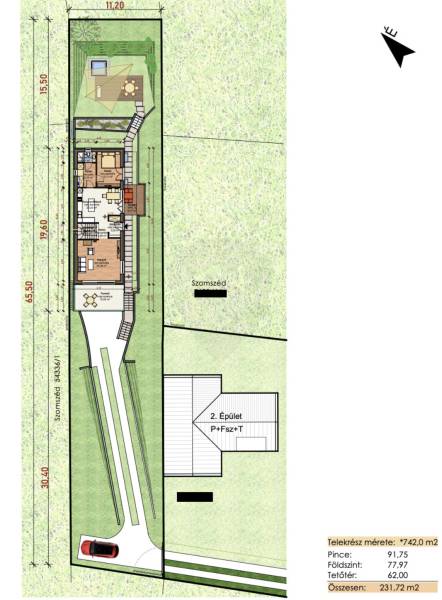
Alapterület: 232 m2
Állapota: új
Építés éve: 2025
Fűtés: -
Felszereltség: -
Szobák száma: 4+1
Szintek száma: -
Telekterület: 742 m2
Kert mérete: 742 m2
Erkély mérete: 28 m2
Parkolás: -
Kilátás: panorámás
Egyéb extrák:  
-
Részletes leírás
Budán, Pesthidegkút-Ófalu egyik legszebb, legnyugodtabb részén, templom tér, Klebelsberg Kultúrkúria és a Széphalom bevásárlóközpont közelében, panorámás, 95%-os készültségű , újépítésű családi ház eladó. Az ingatlan osztatlan közös tulajdonú telken helyezkedik el, jogi használati megosztással.Főbb adatok:- Telekrész használat: 742 m² (kizárólagos használat)- Szobák száma: 4+1 (nappali + 3 háló + hobbiszoba + többcélú helyiségek)- Energiahatékonyság: AA++ – közel nulla energiaigényÁllapot: 95%-os készültség – burkolatok, szaniterek, konyha, kert befejezése az új tulajdonos igényei szerint alakítható, viszont a vételár részét képezi.Felszereltség, extrák:- Hőszivattyús hűtés-fűtés, fan-coil rendszerrel- Hővisszanyerős szellőztetés (Wolf300)- 3 rétegű üvegezésű nyílászárók, motoros alumínium redőnyök- Központi porszívó, riasztó- és napelem előkészítés- Elektromos Hörmann garázskapu, távirányítás- 2 állásos garázs + felszíni parkoló saját használatú telken- 5 m³ esővízgyűjtő, automata öntözés előkészítés- Igényes kerítés, világítás, járda és kerti burkolatokElrendezés:- Pince: Garázs, hobbiszoba, zuhanyzó-WC, háztartási helyiség- Földszint: Nappali, étkező-konyha, hálószoba, zuhanyzó-WC, gardrób, 2 irányba tájolt terasz- Tetőtér: 2 hálószoba, fürdőszoba, többcélú előtérElhelyezkedés, infrastruktúra:- Kiváló tömegközlekedés: buszmegálló 500 méteren belül- Óvoda, iskola, bolt, pékség néhány perces sétára- Francia Iskola 650 méterre, 9 perc gyalog- Csendes zsákutca, barátságos szomszédság, zöld környezetRugalmas befejezési lehetőség, alacsony fenntartási költségek, kiváló minőség – új építésű otthon álomszép környezetben!Hívjon bizalommal a megtekintésért és további részletekért
Hirdető adatai
Hirdető neve: Ispán-Petróczy Szilvia Gréta EV.
Kapcsolattartó: Petróczy Gréta
Hirdető telefonszáma: +36 70 412 5731
Honlap: -