Zala megye, Zalabaksa
 

Ingatlan adatai
Irányár: 10 000 000 Ft
Típus: ház
Kategória: eladó
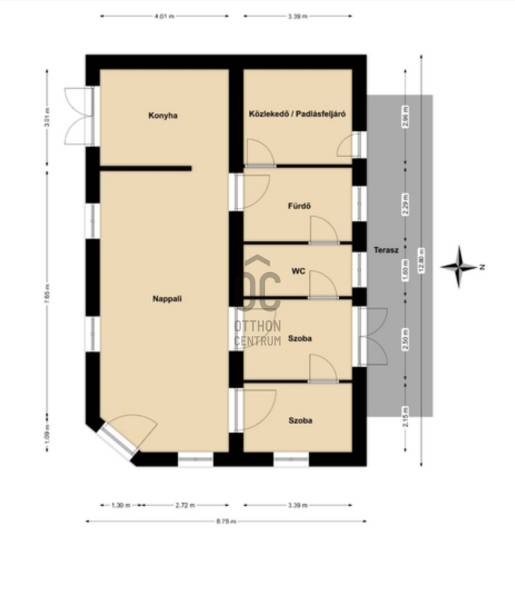
Alapterület: 86 m2
Állapota: felújítást igényel
Építés éve: -
Fűtés: -
Felszereltség: -
Szobák száma: 2
Szintek száma: -
Telekterület: 1 739 m2
Kert mérete: 1 739 m2
Erkély mérete: 20 m2
Parkolás: -
Kilátás: -
Egyéb extrák:  
-
Részletes leírás
Valaha szebb napokat látott ház keresi megmentőjét!Szlovénia felé vezető, forgalmas 86-os út mellett, Zalabaksán kínálom eladásra ezt a felújítandó, karakteres épületet, amely új életre vár!Korábban kereskedelmi egységként működött, de most bármi lehet belőle – csak a képzelet szab határt: Kisvendéglő vagy büfé Panzió Kamionparkoló Családi ház…vagy akár valami egészen egyedi!A 45 cm vastag tégla falak még mindig masszívan állnak, a természetes szellőzést pedig a „panorámás kitört” ablakok biztosítják. :)A tető teljes cserére szorul, ami viszont kiváló alkalom a tetőtér beépítésére és új terek kialakítására.A hátsó terasz jelenleg szerényen megbújik a növényzet mögött, de egy kis törődéssel igazi gyöngyszem válhat belőle.A Közelben halastó, termálfürdő, Szlovénia------Horgászni- kirándulni- kikapcsolódni vágyóknak ideális.Ha nem riadsz vissza a kihívásoktól, és szereted, ha egy épületben potenciált látsz a romok között, akkor ez a hely neked való! Keress bizalommal, ha látod benne a lehetőséget, és szívesen új életet adnál neki!
Hirdető adatai
Hirdető neve: Otthon Centrum
Kapcsolattartó: Fülöp Tamás
Hirdető telefonszáma: +36 70 412 3531
Honlap: -