Somogy megye, Siófok
 

Ingatlan adatai
Irányár: 179 900 000 Ft
Típus: ház
Kategória: eladó
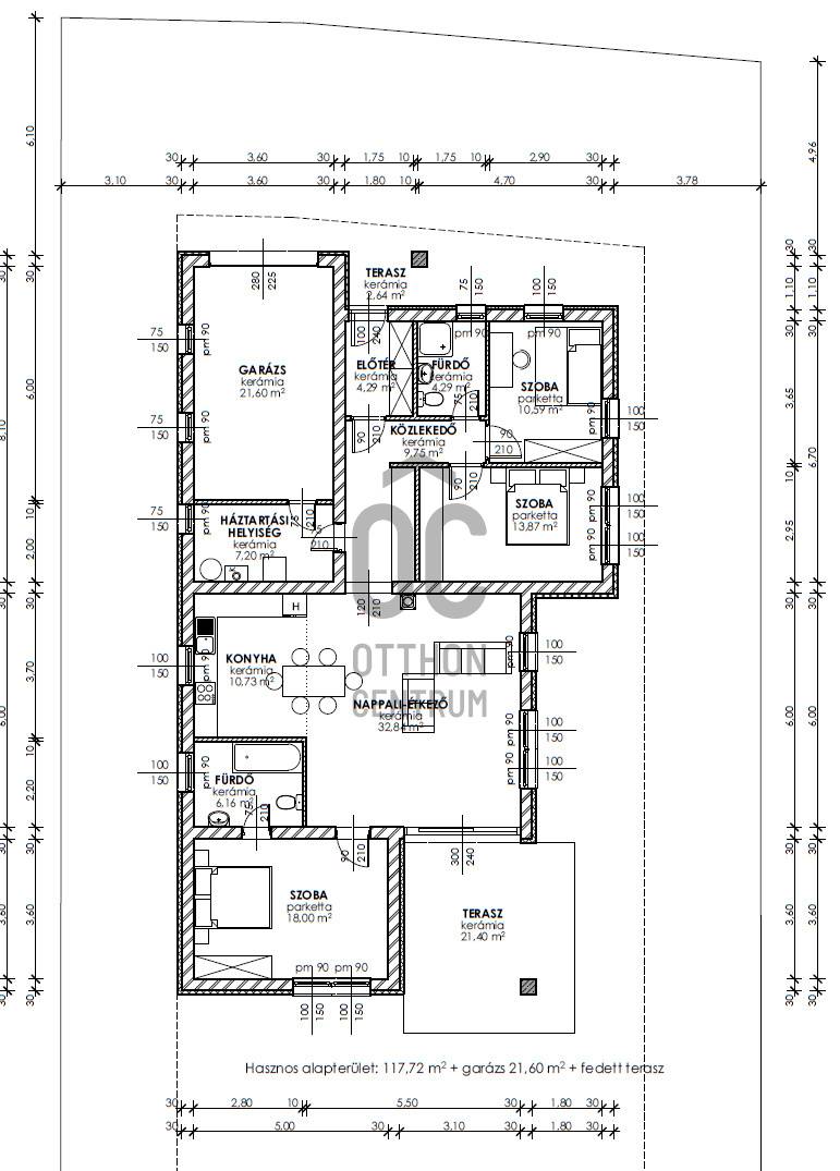
Alapterület: 154 m2
Állapota: új
Építés éve: 2022
Fűtés: gáz (cirko)
Felszereltség: -
Szobák száma: 4
Szintek száma: -
Telekterület: 600 m2
Kert mérete: 600 m2
Erkély mérete: 24 m2
Parkolás: -
Kilátás: -
Egyéb extrák:  
-
Részletes leírás
Eladásra kínálunk Siófok Foki-hegyi, dinamikusan fejlődő városrészén, csendes zsákutcában egy 154 nm új építésű, egy szintes, mediterrán stílusú családi házat, garázzsal, 600 nm telekkel.Elosztása:Nappali-konyha-étkező, 3 hálószoba 2 fürdőszoba +WC , 22 nm-es garázs, háztartási helyiség , előszoba, fedett terasz.A házat 15 cm-es grafit szigetelés fedi, 3 rétegű üveg nyílászárók, riasztó és klíma is található a betonfödémes ingatlanban.Műszaki tartalom:– Terrán Danubia Antracit tetőcserép, antracit csatornarendszerrel– Falazat Leier 30-as kerámia falazó elem, válaszfalak Leier 10-es falazó elemekből– Térkövezett udvari kocsibeálló– Elektromos távirányítású úszókapu és garázskapu– Teljes körűen kiépített napelem rendszer– Részben fedett terasz– Kondenzációs kombi gázkazán– 6 légkamrás, hőhíd mentes nyílászárók, 3 rétegű üveggel, bukó-nyíló kivitelben– Geberit beépített tartályos wc– Fűtő-hűtő légkondicionáló készülék– Kiépített riasztórendszer ablak; ajtónyitásra + mozgásérzékelők + külső sziréna– 600 nm-es telek- gáz cirkó fűtés padlófűtésselAz ár kertépítéssel, öntözőrendszerrel együtt értendő!Az építőnek több referenciája is megtekinthető a helyszínen!Az ELADÓ CSALÁDI HÁZ elkészült azonnal költözhető!A családi ház kellemes, családias, új építésű házak környezetében található, közelben iskola, óvoda, gyógyszertár, orvosi rendelők, kórház, illetve bevásárlási lehetőség is könnyen elérhető.Bővebb információkért, megtekintésért keressen az elérhetőségeimen.Balatoni ingatlanok széles választékával állok rendelkezésére.Siófok családi ház garázs új költözhető
Hirdető adatai
Hirdető neve: Otthon Centrum
Kapcsolattartó: Horváthné Virág Tímea
Hirdető telefonszáma: +36 70 469 3981
Honlap: -