Somogy megye, Siófok
 

Ingatlan adatai
Irányár: 149 900 000 Ft
Típus: ház
Kategória: eladó
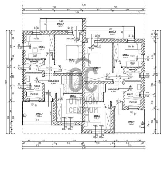
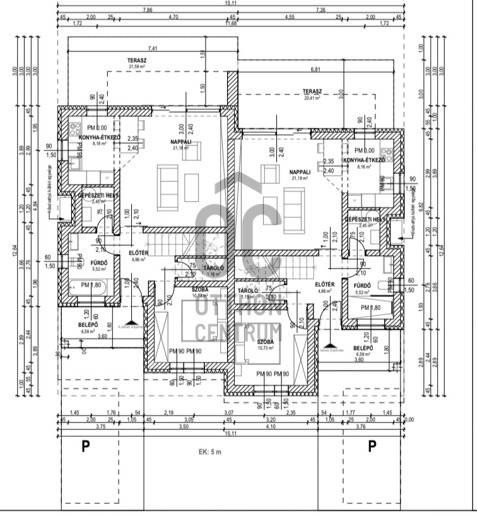
Alapterület: 130 m2
Állapota: új
Építés éve: 2025
Fűtés: -
Felszereltség: -
Szobák száma: 5
Szintek száma: -
Telekterület: 300 m2
Kert mérete: 300 m2
Erkély mérete: 40 m2
Parkolás: -
Kilátás: -
Egyéb extrák:  
-
Részletes leírás
Új tulajdonosára vár egy Családi ikerház Siófok, legfrekventáltabb kertvárosi részén.A kivitelező több évtizedes múlttal rendelkezik Siófokon, mely referenciák megtekinthetőek, kiváló minőségben és magas műszaki tartalommal építi házait.A kétszintes családi ház jellemzői:- 130 m2 alapterület, 20 m2 terasz, 2 erkély az emeleten- 4 teljes értékű hálószoba, 1 méretes amerikai-konyhás nappali, 2 fürdőszoba tusolóval és WC-vel,- háztartási helyiség, gardrób, tároló, közlekedő- A ház fűtése hőszivattyús padlófűtéssel megoldva, plusz fan-coil felszerelve.Műszaki tartalom:Falazat 30-NF Leier tégla 15cm Grafitos Dryvit, műgyantás vakolat,1,5mm.Födém: Tűzálló gipszkarton, mennyezet 30cm Hőszigetelés. Tető: Lapos tető, szigetelveCsatorna – színes horganyzott lemez csatorna, lefolyókkalAblakok: Rehau, műanyag, 0,6 kw 3rétegű üvegezés/ Fehér/ Párkányok: szürkés gránit párkány: belsőpárkány műanyag fehér párkány.Ajtók: belső ajtók fóliázott, utólag beépített (bruttó 48.000FT/db.-ig. Burkolatok: fürdő ajtó magasságig burkolva, bruttó 5,000ft/m2, (laminált és hidegburkolat is) A Bruttó ár 27% áfatartalmat jelent) Festés. Glettelt falak, és fehér diszperziós festés.Villanyszerelés: 4db aljzat minden szobában, külső villany. oldalt, és hátul.Fűtés, meleg víz: , Daikin, vagy Mitsubishi levegő Hőszivattyú meleg víz tartállyal padló fűtéssel és 1db Fan-coil hűtéssel. (H-méréssel.) Fürdő szerelvény: Alföldi WC és Geberit tartály Fürdőben zuhany kabin vagy kád. Alföldi Mosdó (nem szekrényes), Kert és udvar: Nem Parkosított (letisztított)Természetesen jelenlegi állapotban még választható burkolatok, szerelvények !Opció:Konyha bútort, konyhai csaptelepet, lámpákat, beépített szekrényt, az ár nem tartalmaz. Lámpák felszerelése 5.500 ft/db., Alumínium Redőny (motoros): Ablakokra és erkélyajtóra: 1.400 000 FtSzúnyogháló: Igény szerint felmérés után fenti ár nem tartalmazza! Lámpák, kapcsolók felszerelése: 5000 Ft/db- Az ingatlan alkalmas az állami támogatások (CSOK, Babaváró) igénybevételére.Ha nem rendelkezik 70 % Önerővel 2,5 % felárat kell fizetni.- Az ingatlan elhelyezkedése kiváló, hiszen zöldövezeti helyen, Siófok nyugodt részen található. Intézmények (iskola, óvoda), gyógyszertár, bevásárlási lehetőség és a Balaton-part is pár perc alatt elérhető. Kiválóan alkalmas állandó lakhatásra és nyaralónak is.Jöjjön el és győződjön meg róla, hogy ez a legkiválóbb otthon lehet az Ön számára!Várom megkeresését a hét minden napján!Siófok,#Foki hegy,#Ikerház,#magas műszaki tartalom,# CSOK,# megbízható építő,#
Hirdető adatai
Hirdető neve: Otthon Centrum
Kapcsolattartó: Horváthné Virág Tímea
Hirdető telefonszáma: +36 70 469 3981
Honlap: -