Somogy megye, Balatonszabadi
 

Ingatlan adatai
Irányár: 169 000 000 Ft
Típus: ház
Kategória: eladó
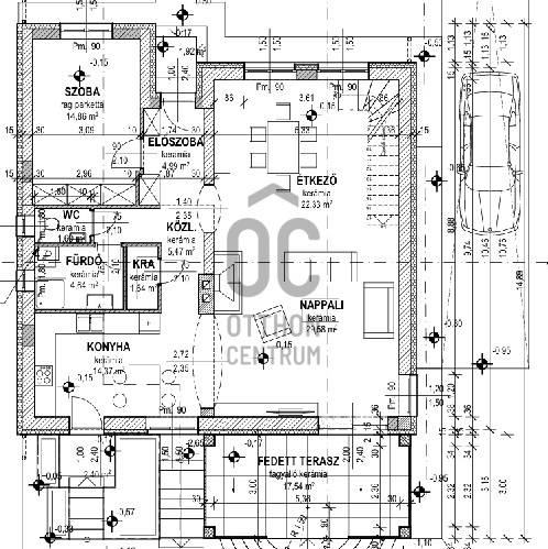
Alapterület: 177 m2
Állapota: -
Építés éve: 2018
Fűtés: gáz (cirko)
Felszereltség: -
Szobák száma: 5
Szintek száma: -
Telekterület: 780 m2
Kert mérete: 780 m2
Erkély mérete: 35 m2
Parkolás: -
Kilátás: -
Egyéb extrák:  
-
Részletes leírás
Ha a Balaton közelsége a vágyad, de szeretnél nyugodt, családias környezetben élni, megtaláltad az ideális otthont!Ez a mindössze 7 éves, különleges hangulatú ház egyszerre kínálja a nyári nyüzsgés és a vidéki nyugalom tökéletes egyensúlyát. Az ingatlan főbb jellemzői:Telek: 780 m², gondosan parkosított kert dísznövényekkel, gyümölcsfákkal és két impozáns pálmávalHáz: 177 m² + 40 m² terasz + 30 m² pinceHatalmas, galériás nappali: 50 m², konyhával és étkezővel együtt kb. 80 m²Nagyméretű, gardróbos hálószobák2 fürdőszoba és 3 WC3 autónak fedett beálló + 4 autó számára saját parkoló Extrák, amik egyedivé teszik:- 30 m² fedett grillterasz konyhával, kemencével, bográcsozóval és külön WC-vel- 5 méter átmérőjű, 1 méter mély medence teljes gépészettel- Fatüzelésű szauna és dézsa – minden nap wellness hangulatban- Öntözőrendszer, kerti világítás- 8 kW-os napelemrendszer (évi ~6 MWh túltermelés, még 8 évig szaldós elszámolással)- Kamerarendszer és távfelügyeleti riasztó Elhelyezkedés:A Balaton aranypartja autóval 3 percFő tér, városközpont: mindössze 4 kmCsendes, zöld kertváros, parkokkal, játszótérrelEz a ház nem csupán egy ingatlan – hanem életstílus.Tágas terek, mediterrán hangulat, wellness élmény és a Balaton közelsége – minden adott ahhoz, hogy álmaid otthonává váljon. Ne hagyd ki ezt a ritka lehetőséget! Hívj most, és nézd meg személyesen ezt az egyedülálló házat!Balaton közelében, #családias,# mediterrán kert,# medence,# grill terasz,# szauna,# napelem, #családi ház#
Hirdető adatai
Hirdető neve: Otthon Centrum
Kapcsolattartó: Horváthné Virág Tímea
Hirdető telefonszáma: +36 70 469 3981
Honlap: -