Szabolcs-Szatmár-Bereg megye, Kisvárda
 

Ingatlan adatai
Irányár: 34 900 000 Ft
Típus: ház
Kategória: eladó
Alapterület: 95 m2
Állapota: felújítást igényel
Építés éve: 1940
Fűtés: gáz (cirko)
Felszereltség: -
Szobák száma: 3
Szintek száma: -
Telekterület: 662 m2
Kert mérete: 662 m2
Erkély mérete: 8 m2
Parkolás: -
Kilátás: -
Egyéb extrák:  
-
Részletes leírás
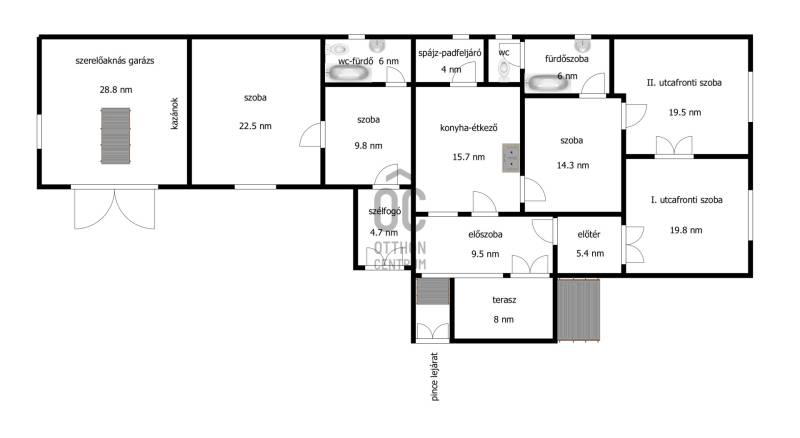
Megvételre kínálunk Kisvárda \"szívében\" ,nagyon kedvelt, polgárias utcában, egy erősen felújítandó, vegyes falazatú (vályog+tégla) két generációs, palával fedett családi házat 662 nm-es 17.5 méter széles telken. Az ingatlan két utcafronti szobáját hajópadlóval, a nappalit keményfa parkettával, az előszobát, a konyha-étkezőt és a külön wc-t, fürdőszobát járólappal burkolták. A nyílászárók még az eredetiek, fából készültek. Az épület hátsó traktusában egy külön bejáratú, 43 nm-es lakrész, (előszoba, szoba, továbbá wc-fürdőszoba) valamint szerelőaknás garázs található. Az ingatlan melegéről központi fűtés gondoskodik, ami gáz és vegyes tüzelésű kazánnal is működtethető. Az ingatlan az elhelyezkedése révén akár építési telekként is, kiválóan alkalmas lehet befektetőknek, illetve egyéb üzleti célokra. Kisvárda családi ház eladó
Hirdető adatai
Hirdető neve: Otthon Centrum
Kapcsolattartó: Czeglédi Csaba
Hirdető telefonszáma: +36 70 388 5416
Honlap: -