Veszprém megye, Zánka
 

Ingatlan adatai
Irányár: 285 250 000 Ft
Típus: ház
Kategória: eladó
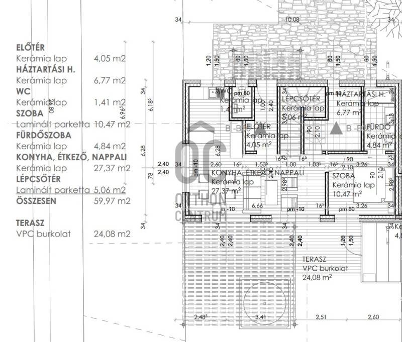
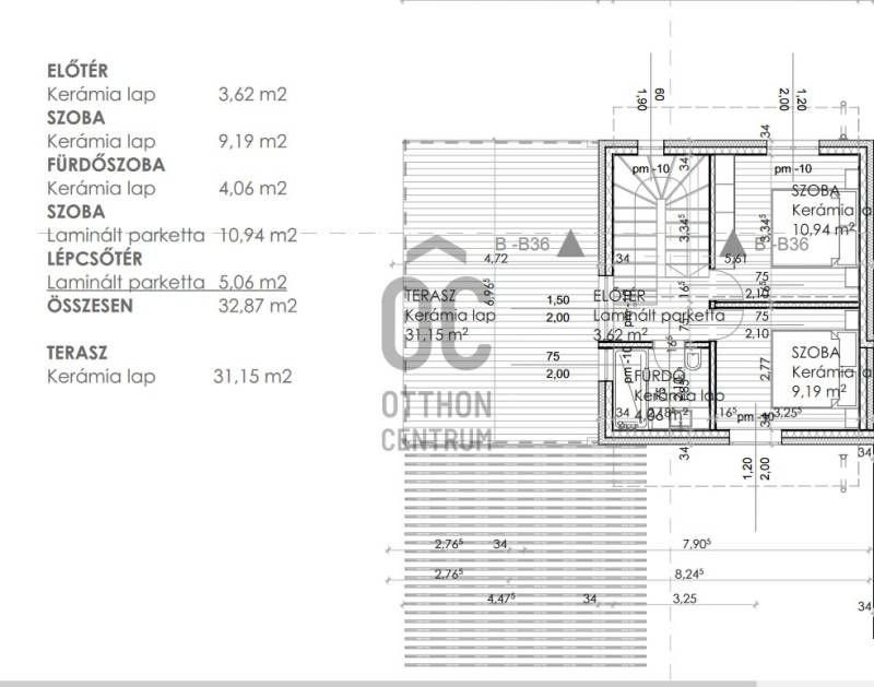
Alapterület: 163 m2
Állapota: új
Építés éve: 2024
Fűtés: -
Felszereltség: -
Szobák száma: 4
Szintek száma: -
Telekterület: 350 m2
Kert mérete: 350 m2
Erkély mérete: 49 m2
Parkolás: -
Kilátás: -
Egyéb extrák:  
-
Részletes leírás
Zánkán a vízparton mesés ingatlan leköthető!A vízparttól 50 méterre épülő, kiemelten frekventált helyen kínáljuk megvételre ezt az örökpanorámás ingatlant.EXTRÁK:-gondozás mentes pázsit, prémium minőségű anyag választás.--VOLTI elektromos autó töltő állomás(minden ingatlannak egyedileg)-WPC burkolat antracit színben teraszon-24 nm es alumínium antracit egyedileg gyártott elektromos pergola (több funkcióban állítható lamellák és világítás)WELLNESS-Kültéri a teraszra telepített egyedileg gyártott Finn szauna 4-6 személye-Kültéri 4-6 személyes pezsgőfürdő-DézsafürdőBIZTONSÁGI felszerelés-Riasztó rendszer-Kamera rendszerBELTÉRI egyéb felszerelés-Teljes gépesített konyha-Elektromos redőnyökAz ikerház teljesen külön két bejárattal, két házként kezelhetőnek épül, mivel építtető a belső udvart is teljesen önállóan leválasztja.A házak a legmodernebb anyagokból, minden igényt kielégítően épülnek, akár az Ön ízlése is már tükrözheti majd, mert most még lehetőség van arra, hogy ezt Ön mint vevő befolyásolja.A kétszintes ingatlanok nem csak nyári rezidenciának, hanem téli időszakban is használhatóak lesznek, hiszen építtető négy évszakosra tervezte.Mindkét ingatlan 120 m2-es-re tervezett két szinten helyezkedik el, hatalmas, 86 m2-es terasszal épül, mint említettem már minőségi anyagokból, praktikus, kiváló elrendezéssel.A kültéren szauna, pezsgőfürdő is gondoskodik az Ön és családja kényelméről, és nem utolsó sorban a panoráma amit kap, az teljesen egyedi.A ház falazata 30-as külső és 10-es belsővel tervezett, vasbeton födémmel, szigeteléssel 15 cm, cserépfedéssel.Fűtése és hűtése hőszivattyús megoldással tervezett. A konyha teljes gépesítettre tervezett és kiépített kamerarendszer és riasztó vigyázza majd az Ön ingatlanát.Gépkocsijának fedett autóbeálló áll a rendelkezésre.Kérem, gondolja meg, ha full panorámát, közvetlen vízpartot keres, mert ez egy kivételes lehetőség Önnek és családjának.
Hirdető adatai
Hirdető neve: Otthon Centrum
Kapcsolattartó: Varró Gábor
Hirdető telefonszáma: +36 70 388 5131
Honlap: -