Budapest, II.kerület
 

Ingatlan adatai
Irányár: 299 000 000 Ft
Típus: ház
Kategória: eladó
Alapterület: 231 m2
Állapota: új
Építés éve: 2023
Fűtés: -
Felszereltség: -
Szobák száma: 5
Szintek száma: -
Telekterület: 742 m2
Kert mérete: 742 m2
Erkély mérete: 28 m2
Parkolás: -
Kilátás: -
Egyéb extrák:  
-
Részletes leírás
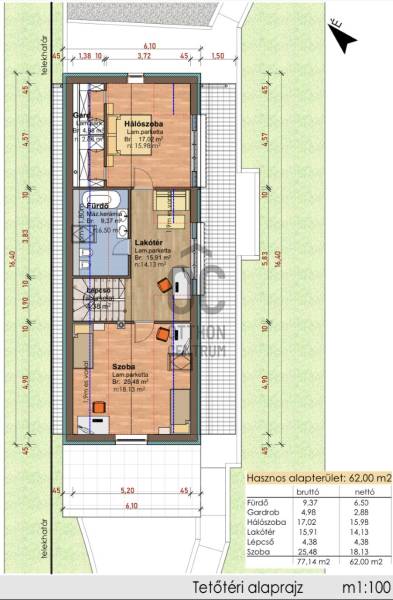
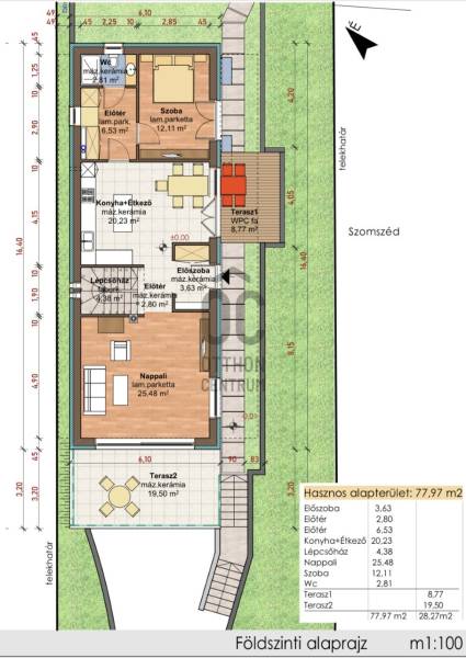
Pesthidegkút panorámás részén kínáljuk eladásra ezt az újépítésű, korszerű igényeket kielégítő, energiatakarékos családi házat.A nettó 231 m2 alapterületű ház tágas lakóterekkel és egy kizárólagos használatú, 742 m2 nagyságú lehatárolt telekrésszel rendelkezik.Elhelyezkedése ideális, mivel egy teljesen csöndes, autóforgalomtól mentes utcában található, ahonnan percek alatt elérhető a főút akár autóval, akár gyalogosan.A ház kialakítása:Pinceszinten két gépkocsi befogadására alkalmas 42 m2 alapterületű garázs, háztartási helyiség, zuhanyzós wc, valamint 2 további többfunkciós helyiség található, melyek alkalmasak lehetnek hobbiszoba, játszószoba, konditerem, vagy otthoni vállalkozás helyszínének.A háztartási helyiségben került elhelyezésre a hőszivattyús hűtő-fűtő rendszer, hő-visszanyerő szellőző berendezés, napelem előkészítés, vezetékes Tv, telefon- internet csatlakozás, riasztó vezetékezés, központi porszívó, mosó-és szárítógép csatlakozási lehetőség.Földszinten déli tájolású nappali került kialakításra teraszkapcsolattal (19,5 m2), továbbá étkező-konyha szintén teraszkapcsolattal (8,77 m2), valamint hálószoba és zuhanyzós wc. A teraszok mérete a nettó alapterületen felül értendő.Tetőtérben 2 hálószoba, fürdőszoba, gardróbhelyiség valamint többfunkciós előtér található.A kert gyepesítve kerül átadásra. A ház mögötti kertrészben lehetőség van további terasz kialakítására, valamint jakuzzi elhelyezésére.Parkolás:Saját garázsban 2 autó számára + 1 nyitott beállóban, továbbá az utcai kerítés mentén létesülő vendég parkolóhelyeken.A környéken a parkolás ingyenes.A modern elvárásoknak megfelelően az épület hőtechnikai mutatói nagyon kedvezőek, a beépített magas minőségű anyagok és a korszerű gépészet miatt közel \"0\" energiás ház kategóriába sorolható, AA++ energetikai besorolással.Beépítésre került hőszivattyús kazán, amely a fűtést, hűtést (fan-coil hűtés) és a meleg vizet biztosítja. Hőcserélős szellőzőberendezés, fokozott hőszigetelő képességű, 3 rétegű üvegezéssel ellátott nyílászárók, Porotherm Klima30 tégla-15cm Grafitos hőszigetelő rendszerrel.A környék infrastrukturális ellátottsága kiváló: 4-500 m-en belül elérhető buszmegálló, bevásárlási lehetőség, gyógyszertár, drogéria. A közelben számos óvoda, általános iskola található, továbbá a francia iskola.Sportolásra a Gyarmati Dezső Uszoda és mellette az újonnan létesült 28 ezer m2-es sport- és szabadidőközpont nyújt lehetőséget.Kulcsrakész átadás 2026. II. negyedévében várható.Részletes műszaki tartalom ismertetése igény szerint személyesen vagy elektronikus úton történik.További információ és időpont-egyeztetés céljából várom hívását!
Hirdető adatai
Hirdető neve: Otthon Centrum
Kapcsolattartó: dr. Mogony Márta
Hirdető telefonszáma: +36 70 716 9526
Honlap: -