Veszprém megye, Veszprém
 

Ingatlan adatai
Irányár: 120 000 000 Ft
Típus: ház
Kategória: eladó
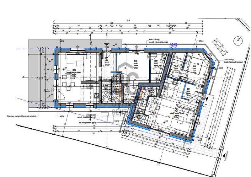
Alapterület: 106 m2
Állapota: új
Építés éve: 2025
Fűtés: -
Felszereltség: -
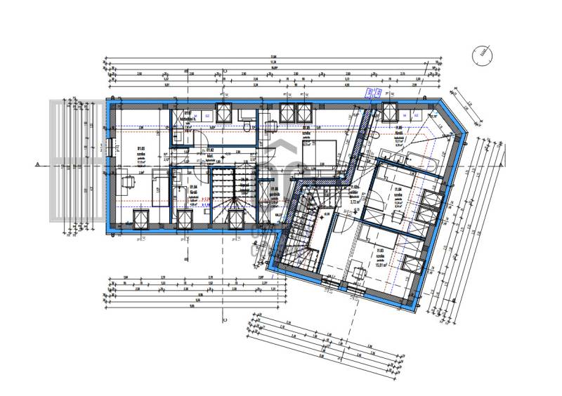
Szobák száma: 4
Szintek száma: -
Telekterület: 200 m2
Kert mérete: 200 m2
Erkély mérete: 10 m2
Parkolás: -
Kilátás: -
Egyéb extrák:  
-
Részletes leírás
Veszprém kiváló, Újtelep városrészen, családi házas, csendes zöldövezetében, megvételre kínálok egy új építésű ikerházat.Jelenleg a belső munkálatok folynak (60-70%-os készültségfok), a burkolatokat, szanitereket az új tulajdonos még kiválaszthatja.Az épület jogilag teljesen rendezett, tehermentes és két lakásos társasházként,külön albetétként, fog funkcionálni.A nagyszerű adottságai miatt, teljesen szeparált, külön bejáratú, egymástól szinte független megoldásokkal épül.A ház földszintjén amerikai konyhás nappali-étkező,konyha, fürdőszoba és egy hálószoba található. A légies kialakítású lépcső hatása miatt, tágas, szellős és a valóságnál jóval nagyobb érzetű a nappali, amihez egy 10nm-es terasz is kapcsolódik. A felső szinten két nagy méretű hálószoba és egy különleges, egyedi, szintén nagy méretű fürdőszoba kapott helyet. A belváros pár perces sétával, Balaton szintén gyorsan, 10perc alatt megközelíthető.Energetikai besorolása:A+Hőszivattyús fűtése(padlófűtés) és hűtése lesz, Panasonic hőszivattyú került beépítésre.-három rétegű Rehau nyílászárók-betoncserép-30-as tégla falazat- 15 cm homlokzat szigetelésTervezett átadás ideje:2026 május végeAz ára a kulcsrakész állapotra vonatkozik.Rugalmasan megtekinthető!
Hirdető adatai
Hirdető neve: Otthon Centrum
Kapcsolattartó: Boros Ildikó
Hirdető telefonszáma: +36 70 716 8116
Honlap: -