Hajdú-Bihar megye, Debrecen
 

Ingatlan adatai
Irányár: 119 990 000 Ft
Típus: ház
Kategória: eladó
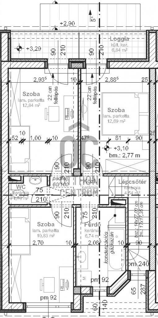
Alapterület: 117 m2
Állapota: új
Építés éve: 2022
Fűtés: gáz (cirko)
Felszereltség: -
Szobák száma: 4
Szintek száma: -
Telekterület: 196 m2
Kert mérete: 196 m2
Erkély mérete: 17 m2
Parkolás: -
Kilátás: -
Egyéb extrák:  
-
Részletes leírás
Debrecen kedvelt részén, a Hatvan utcai kert csendes, új építésű övezetében, magas műszaki tartalommal rendelkező, jó elrendezésű, kétszintes, sorházi lakás eladó. Az ingatlan, nappali + 3szobás, dupla komfortú, a földszinten garázzsal, terasszal, és önálló kertkapcsolattal.Kedvező hitelkonstrukció és vásárlási feltételek.Az ingatlan jellemzői:-modern építési technológia-saját kertkapcsolat-nagy terasz-hőszigetelt üvegezésű, argon gázzal töltött ablakok-cirkó-fűtés, kondenzációs kazánnal-minőségi burkolatok és szaniterek-kitűnő infrastruktúra-csendes, értékálló környezet-stb.
Hirdető adatai
Hirdető neve: Otthon Centrum
Kapcsolattartó: Lovász Sándor
Hirdető telefonszáma: +36 70 469 3276
Honlap: -