Hajdú-Bihar megye, Debrecen
 

Ingatlan adatai
Irányár: 165 000 000 Ft
Típus: ház
Kategória: eladó
Alapterület: 135 m2
Állapota: új
Építés éve: 2024
Fűtés: gáz (cirko)
Felszereltség: -
Szobák száma: 5
Szintek száma: -
Telekterület: 451 m2
Kert mérete: 451 m2
Erkély mérete: 33 m2
Parkolás: -
Kilátás: -
Egyéb extrák:  
-
Részletes leírás
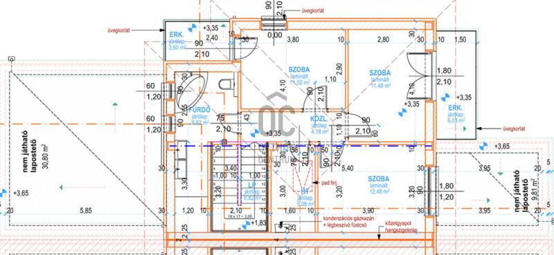
Debrecen Kerekes - telep városrész központi részén eladó, egy mai modern technológiával épülő ikerház.A két ingatlan egymás mellett helyezkedik el, tehát utcáról lehet megközelíteni mind a kettőt, nem egymáson átjárós.Saját telek : 451 m2 lakásonként, jó alakú, minden ami kell egy családi házhoz , megvalósítható benne.Az ingatlan beépített alapterület : 170 m2, amelyből a fűtött lakótér : 135 m2 , + 35 m2 - es dupla autós garázs.A lakóingatlanhoz tartozik még : 22,66 m2 - es terasz + 6,09 m2 - es, és 3,6 m2 - es erkély.Kialakítása : földszint + emelet.Földszint helyiségei : konya - étkező - nappali, szoba, wc, dupla garázs + terasz.Emelet helyiségei : 3 szoba, tágas fürdőszoba , háztartási helyiség + erkély.Jellemzői :- magas minőségű építőanyagokból épül- szigetelés oldalfalon : 10 cm, födémen : 25 cm- Fűtés + melegvíz : VEISMANN 24 KW kondenzációs gázkazán, vagy ennek megfelelő levegős VEISMANN hőszivattyú- padlófűtés- mennyezet hűtés- 3 rtg , 6 kamrás műanyag ablakok, belül fehér, kivül szenes felülettel.Közelben óvodák, iskolák, bevásárlóközpontok, a környék szolgáltatása, infrastruktúrája folyamatosan fejlődik, így az ingatlan jó vétel, értékálló.Az ingatlan kb : 50 % - os készültségben van, tudok már mit mutatni.Várható átadás : 2025 nyaraHa felkeltettem az érdeklődését, kérem, hívjon bizalommal.
Hirdető adatai
Hirdető neve: Otthon Centrum
Kapcsolattartó: Tóth Ferenc
Hirdető telefonszáma: +36 70 716 9076
Honlap: -