Hajdú-Bihar megye, Debrecen
 

Ingatlan adatai
Irányár: 199 000 000 Ft
Típus: ház
Kategória: eladó
Alapterület: 150 m2
Állapota: új
Építés éve: 2025
Fűtés: -
Felszereltség: -
Szobák száma: 4
Szintek száma: -
Telekterület: 235 m2
Kert mérete: 235 m2
Erkély mérete: 25 m2
Parkolás: -
Kilátás: -
Egyéb extrák:  
-
Részletes leírás
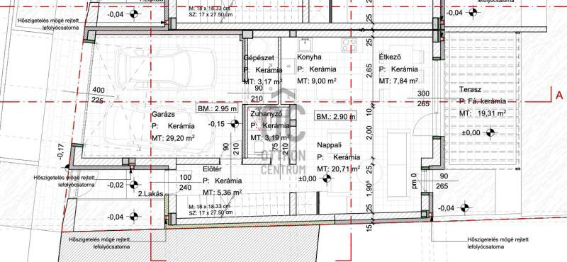
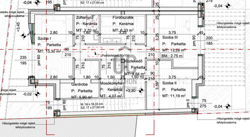
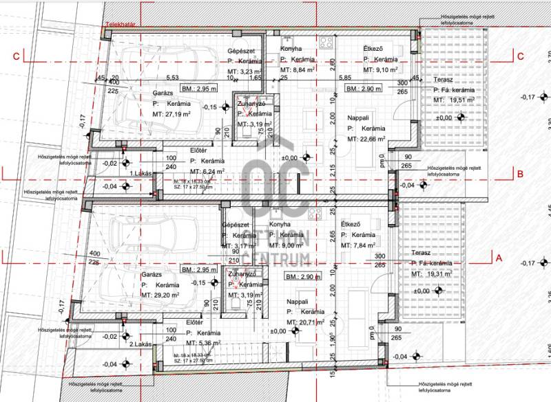
PRÉMIUM BELVÁROSI ÉLETTÉR – LUXUS IKERHÁZ DEBRECENBEN!Debrecen egyik legcsendesebb, mégis abszolút belvárosi utcájában, kínálunk megvételre egy 170 m²-es, új építésű, prémium kategóriás ikerházat, DUPLA GARÁZZSAL.Ez az ingatlan azoknak szól, akik nem kompromisszumot keresnek, hanem minőséget és nyugalmat a város szívében.-Az ár kulcsrakész állapotra vonatkozik.-A jelenlegi 90%-os készültség lehetőséget ad a végső részletek személyre szabására.Életstílus, nem csak ingatlan!Ez a ház ideális választás azoknak, akik:a belváros közelségét szeretnék élveznide nem akarnak lemondani a csendről és privát élettérrőlfontos számukra a minőség, design és modern technológia.- Ritka kombináció: városi élet + kert + nyugalom + prémium kivitelezésKinek szól valójában?Felsővezetőknek, vállalkozóknakAkik értékelik az időt, a kényelmet és a reprezentatív környezetet.Orvosoknak, ügyvédeknek, értelmiségi rétegnekAkik számára a lokáció presztízst, a környezet pedig nyugalmat jelent.Családoknak, akik szintet lépnénekAhol a gyerekeknek tér jut, a szülőknek pedig valódi élettér.Terek, amik élhetőektágas nappali–étkező–konyha – a mindennapi élet központja3 külön nyíló hálószoba – privát életterek3 fürdőszoba – kompromisszummentes kényelemgardrób + háztartási helyiségdupla garázs közvetlen bejutással- A jelenlegi állapot lehetőséget ad arra, hogy nem egy kész sablont kap, hanem saját otthont hoz létre.Technológia, ami a komfortot szolgáljaDaikin hőszivattyús rendszerteljes felületen padlófűtésklimatizált helyiségekelektromos alumínium okos redőnyökvízlágyító rendszerkomplett riasztó- és kamerarendszerkamerás kaputelefonKülső terekparkosított kertautomata öntözőrendszerrobotfűnyíró előkészítés- Minimális ráfordítás, maximális komfort.Mi teszi igazán értékessé?Belvárosi elhelyezkedés, mégis csendúj építés, prémium műszaki tartalomkulcsrakész ár – tervezhető költségekmég személyre szabhatóhosszú távon is értékálló ingatlanBefektetőknekA lokáció és a műszaki tartalom miatt kiemelkedő értékállóság, prémium bérlői kör, hosszú távon stabil hozam.ÖsszegzésEz az ingatlan nem azoknak szól, akik csak “lakást keresnek”.Ez azoknak szól, akik tudják, mit jelent a minőségi élettér.Ha Ön is ebbe a körbe tartozik, hívjon bizalommal és nézze meg személyesen.Az ilyen ingatlanok nem sokáig maradnak a piacon.
Hirdető adatai
Hirdető neve: Otthon Centrum
Kapcsolattartó: Szaszala Zsolt
Hirdető telefonszáma: +36 70 469 3681
Honlap: -