Hajdú-Bihar megye, Debrecen
 

Ingatlan adatai
Irányár: 134 900 000 Ft
Típus: ház
Kategória: eladó
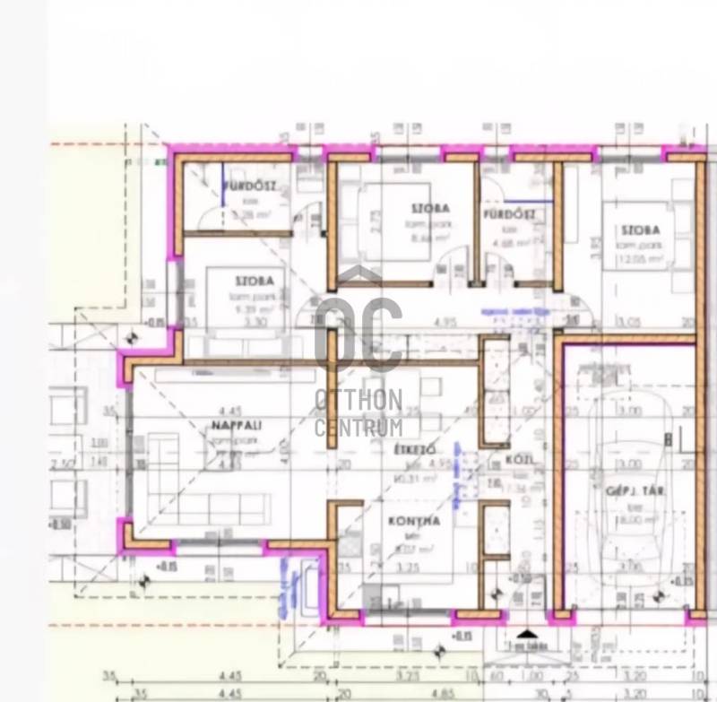
Alapterület: 112 m2
Állapota: új
Építés éve: 2025
Fűtés: -
Felszereltség: -
Szobák száma: 4
Szintek száma: -
Telekterület: 433 m2
Kert mérete: 433 m2
Erkély mérete: 16 m2
Parkolás: -
Kilátás: -
Egyéb extrák:  
-
Részletes leírás
Fiatal felnőttek figyelem! Debrecen legfelkapottabb részén, Alsó-Józsán kínálunk eladásra egy új, modern házat, amely tökéletes választás lehet első otthonának. -3 külön nyíló szoba,egy szobához külön fürdőszoba-Az étkező,konyha és nappaliból kijárat a teraszra és a kertbe-Fürdőszoba wc-vel ,zuhanyzóval ,de kád is beépíthető-Fűtésről hőszivattyú gondoskodik a hűtésről pedig beépített Split klíma / H Tarifa/-A tetőtérben 30m2 tárolási terület lett kialakítva-A garázs 18m2 ,eletromos Hörmann kapuval elátva , elektromos autó töltővel ellátva-A falakon 15cm grafit szigetelés-Födém 30cm kőzetgyapotA külső nyílászárók Schüco 3 rétegű,kívűl belül antracit színűBeépített szekrények kialakítására is van bőven helyAz udvaron locsolóvíz kialakítása megtörténtKözelben iskola,óvoda,bölcsőde,bolt,buszmegálló.Amennyiben felkeltette érdeklődését ez a kivételes ingatlan,keressen bizalommal .
Hirdető adatai
Hirdető neve: Otthon Centrum
Kapcsolattartó: Deák Andrea
Hirdető telefonszáma: +36 70 388 5986
Honlap: -