Pest megye, Pilisborosjenő
 

Ingatlan adatai
Irányár: 249 000 000 Ft
Típus: ház
Kategória: eladó
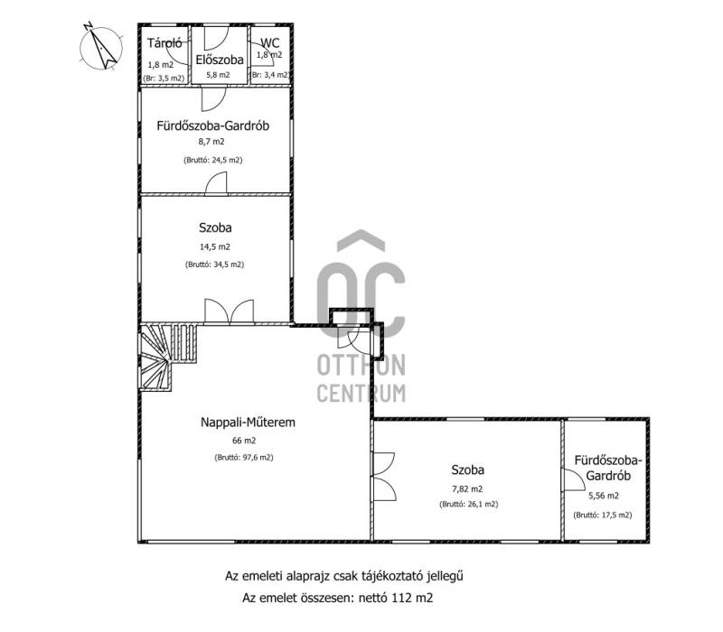
Alapterület: 298 m2
Állapota: -
Építés éve: -
Fűtés: gáz (cirko)
Felszereltség: -
Szobák száma: 6
Szintek száma: -
Telekterület: 841 m2
Kert mérete: 841 m2
Erkély mérete: -
Parkolás: -
Kilátás: -
Egyéb extrák:  
-
Részletes leírás
Fedezze fel ezt az exkluzív, prémium kivitelezésű ingatlant, amely ideális választás, ha egy tágas, világos otthont keresnek a csend és a nyugalom szívében. Ideális választás azok számára, akik szeretnék élvezni a természet közelségét, miközben a főváros nyújtotta lehetőségeket is könnyen elérhetik. Pilisborosjenő gyönyörű és felkapott környéken, Üröm és Budapest szomszédságában található. A város zajától távol, de a főváros mégis könnyen elérhető, legyen szó akár a napi munkába járásról vagy ha Budapest számos kulturális és szórakoztató központjaiba látogatna el.A maga 298 m²-es alapterületével, 6 szobájával, 4 fürdőszobájával garantáltan elegendő hely áll rendelkezésére a kényelmes élethez. Pilisborosjenő nemcsak a természet közelségét, hanem a városi élet előnyeit is kínálja. A dr. Lázár Antal Ybl-, Kossuth-, és Európa díjas  építész (A & D Studió) tervei alapján készített átépítést szemet gyönyörködtető egyedi építészeti megoldásaival méltán nevezhetjük egyedülállónak! A különleges stílusú, 2002 -re teljes felújításon és átépítésen átesett házban - amint belép - érezheti, hogy megtalálta otthonát!A tervezés során különös gondot fordított a tulajdonos az építésszel karöltve A MÚLT ÉS JELEN TÖKÉLETES KOMBINÁCIÓJÁNAK kialakítására.Az alsó szint tisztán ÜRÖMI KŐBŐL épült, a felújítás során 28 cm monolit vasbeton födém került rá. Erre épült egy nagy belmagasságú tetőtéri beépítés, TÉGLA építésű falakkal, nagy szobákkal, kényelmes, tágas terekkel.A villany-, víz-, gáz-, valamint csatornavezetéket teljes egészében kicserélték a felújítás alkalmával.A tetőcserepeket ALFÖLDI KASTÉLY BONTÁSÁBÓL rendelték meg, hogy korabeli és a stílushoz illeszkedő legyen.INGATLAN:- 841 m² összközműves telek- 298 m² ház- Nappali + 5 hálószoba- 4 nagyméretű fürdőszoba- tágas mosókonyha a földszinten, mely wellness részleg kialakítására alkalmas- 33,4m² KÉT BEÁLLÁSOS GARÁZS (fűtött, és vízzel ellátott) - 100 m² tágas BOROSPINCE tökéletes szellőzéssel- 8 m mély ásott kútMŰSZAKI:- gázcirkó kazán radiátoros fűtéssel- az emeleti nappaliban padlóba süllyesztett fűtés- a földszinten két csodálatos épített cserépkályhával is kiegészítve az épület otthonos hangulatához hozzájárul- Prémium minőségű TRYBA fémszerkezetű ablakok műanyag borítással, két rétegű üvegezéssel, melyeket a gyártó cég évente karbantart.(A francia TRYBA cégtől rendelik kastélyok számára is a prémium minőségű ablakokat)REZSI:A ház kialakításának köszönhetően akár 3 külön lakrész kialakítható. Ezáltal - mint jelenleg is - 3 lakásnak megfelelő rezsivédett árú gázfogyasztás igényelhető. Amennyiben felkeltette az érdeklődését ez a kivételes ingatlan, ne habozzon kapcsolatba lépni velem!
Hirdető adatai
Hirdető neve: Otthon Centrum
Kapcsolattartó: Korcsog Melinda
Hirdető telefonszáma: +36 70 388 5966
Honlap: -