Hajdú-Bihar megye, Létavértes
 

Ingatlan adatai
Irányár: 21 500 000 Ft
Típus: ház
Kategória: eladó
Alapterület: 82 m2
Állapota: -
Építés éve: 1997
Fűtés: egyéb
Felszereltség: -
Szobák száma: 2
Szintek száma: -
Telekterület: 939 m2
Kert mérete: 939 m2
Erkély mérete: -
Parkolás: -
Kilátás: -
Egyéb extrák:  
-
Részletes leírás
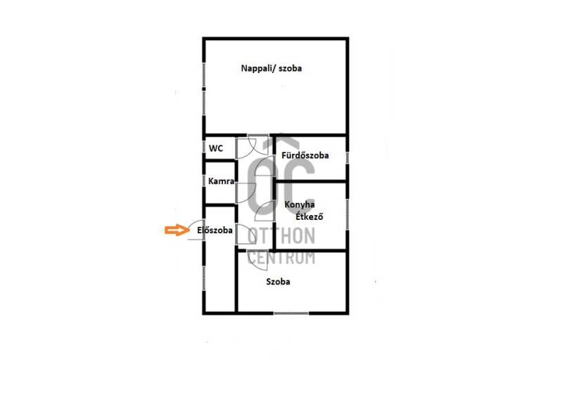
Debrecen vonzáskörzetében, Létavértesen egy 82 nm-es családi ház 939 nm-es telekkel eladó.Az ingatlan jellemzői:- 1997-ben épült- masszív beton alapon 50cm-es vályog falazat- cserép héjazat- műanyag nyílászárók - közművek: víz, villany, csatorna - fűtése cserépkályha és kandallóHelyiségei:- 2 nagy lakószoba- étkező-konyha- főzőfülke, kamra- fürdőszoba - Wc- előszobaAmennyiben további kérdése van az ingatlannal kapcsolatban várom telefonos megkeresését.
Hirdető adatai
Hirdető neve: Otthon Centrum
Kapcsolattartó: Hriczuné Sápi Júlia
Hirdető telefonszáma: +36 70 461 9406
Honlap: -