Hajdú-Bihar megye, Debrecen
 

Ingatlan adatai
Irányár: 205 000 000 Ft
Típus: ház
Kategória: eladó
Alapterület: 130 m2
Állapota: -
Építés éve: 2011
Fűtés: gáz (cirko)
Felszereltség: -
Szobák száma: 4
Szintek száma: -
Telekterület: 200 m2
Kert mérete: 200 m2
Erkély mérete: 13 m2
Parkolás: -
Kilátás: -
Egyéb extrák:  
-
Részletes leírás
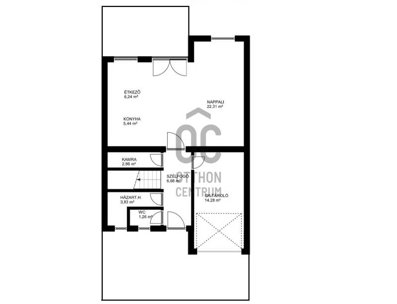
Széchenyi kertben Nappali + 3 szobás, 130 nm-es, gardróbos, nagy, esztétikus kialakított terasszal és garázskapcolattal rendelkező erkélyes, stílusos, 2011-es építésű, különleges hangulatú sorházi ingatlan eladóLokáció:-Széchényi kerti, csendes lakókörnyezet- hangulatos, kertvárosi jellegű utca- városközpont és autópálya felhajtó egyaránt 10 perc távolságraLakóház:-világos tágas terek, letisztult egyedi design-földszinten tágas nappali-konyha-étkező- intim, zárt, nappaliból nyíló egyedi hátsó udvar/terasz-fölszinten található még zuhanyzós mosdó és az előszobából nyíló gépkocsi tároló-emeleten 3 teljesértékű, külön bejáratú hálószoba- tágas, formatervezett, nívós anyagokból megvalósított fürdőszobaMűszaki tartalom:- fűtött garázs, - hőszigetelt, műanyag nyílászárók, - motoros zsaluzia árnyéékolás- kondenzációs kazás padló és radiátoros fűtéssel- hűtő-fűtő klímák és fan-coil hőleadóAmennyiben fontos Önnek az értékálló lokáció, szeretne egy valóban nem 12 egy tucat, egyedi sorházat, a paraméterek pedig megfelelőek, akkor érdemes személyesen is megtekintenie, hogy beleszerethessen!Hívjon és egyeztessünk!Hajdú-Bihar, Debrecen, Széchenyi-kert, 4 szobás, tégla, hőszigetelt, klíma, értékálló, gáz cirkó, erkély, terasz, csendes környék, sorház, egyedi, nívós, különleges
Hirdető adatai
Hirdető neve: Otthon Centrum
Kapcsolattartó: Gyurka Csaba
Hirdető telefonszáma: +36 70 461 9716
Honlap: -